Terrain À vendre à Burton, Nouveau-Brunswick
110 000 $None Chambres
-
Détails
-
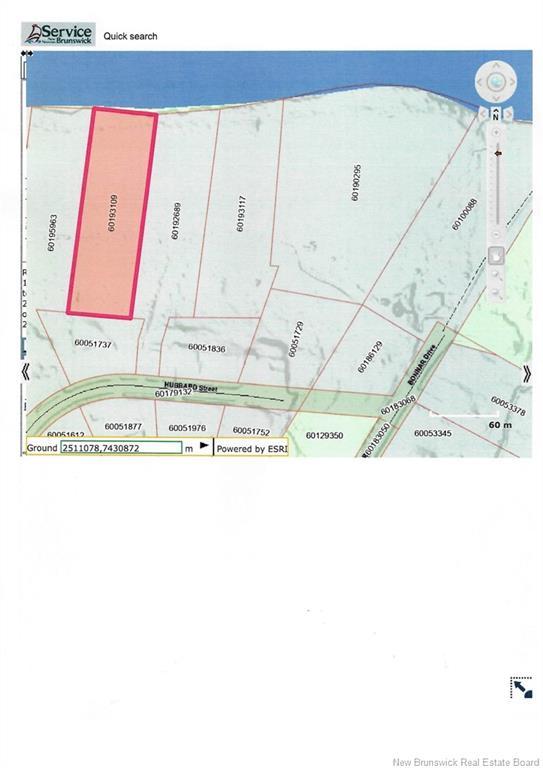
Carte
-
Données démographiques
-
Vue de la rue
-
Itinéraire
-
Publicité
Ventes/Historique de prix
Se connecter ou créer un compte pour voir les inscriptions vendues et les historiques d'inscriptions











