979 000 $

Propriété À vendre à Victoria, Colombie-Britannique

979 000 $
  • 3

    Chambres

  • 2

    Salles de bain

  • $882

    Frais de copropriété

A RARE OFFERING - Experience true urban living in this stunning New York–style loft located in the heart of Old Town. Originally built over 100 years ago, this character-filled home combines heritage charm with modern sophistication. Spanning nearly 1,600 sq ft across two levels, it features exposed brick walls, soaring 16-foot ceilings, large windows that flood the space with natural light, and upgraded flooring throughout. The stylish modern kitchen is perfect for entertaining, while the private deck offers a quiet retreat. Live in comfort year round as there is an efficient Heat Pump System and a bonus with access to a Roof Top. With 3 bedrooms and 2 baths, this rare offering is steps from Chinatown, the Inner Harbour, and Victoria’s best shops and restaurants—offering an unmatched lifestyle in one of the city’s most vibrant neighborhoods.

Caractéristiques :

  • Taxes annuelles totales: 4 739 $
  • Animaux domestiques permis: Aquariums, Oiseaux, Mammifères en cage, Chats permis, Chiens permis
  • Appareils ménagers: Lave-vaisselle, Laveuse et sécheuse autoportantes
  • Bâti en: 1901
  • Caractéristiques de buanderie: À l'intérieur des unités
  • Caractéristiques de stationnement: Aucun
  • Caractéristiques du terrain: Commerces à proximité, Trottoir
  • Caractéristiques extérieures: Balcon/patio
  • Caractéristiques intérieures: Rangement de placard, Salon-salle à manger combinés, Espace repas, Espace de rangement, Plafond(s) voûté(s)
  • Chambres : 3
  • Chauffage: Plinthes, Électrique, Thermopompe
  • Condition de la propriété: Revente
  • Description du zonage: Multifamilial
  • Détails de la fondation: Périmètre en béton
  • Dimensions du terrain : 1773.00 Pieds carrés
  • Égouts:
  • Frais de copropriété : 882 $ Mensuel
  • Inclut dans les frais du syndicat: Déchets, Assurance, Gestion de la propriété, Eau
  • Largeur du terrain en façade : 1773 Pieds carrés
  • Matériaux de construction: Brique, Stuc
  • Propriété: Condo/strata en propriété franche
  • Refroidissement: Climatisation
  • Revêtements de sol: Tapis, Stratifié, Linoléum
  • Salle(s) de bains : 2
  • Source d'eau: Municipal
  • Sous-type de propriété: Copropriété type appartements
  • Style architectural: Art déco, Héritage
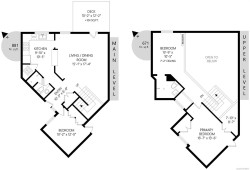
  • Superficie habitable (approx): 1598 Pieds carrés
  • Toiture: Bitume posé au chalumeau
  • Vue: Ville
  • Nbre d'espaces de stationnement: 0

Détails des pièces :

  • Autre Rez-de-chaussé 2.74 m x 1.83 m
  • Autre Rez-de-chaussé 3.96 m x 3.05 m
  • Salon Rez-de-chaussé 7.32 m x 5.49 m
  • Cuisine Rez-de-chaussé 3.96 m x 3.35 m
  • Salle de bains Rez-de-chaussé
  • Chambre Rez-de-chaussé 3.66 m x 3.05 m
  • Autre 2e niveau 5.18 m x 3.96 m
  • Studio 2e niveau 2.74 m x 1.52 m
  • Salle de bain ensuite 2e niveau
  • Chambre 2e niveau 3.96 m x 3.35 m

Gracieuseté de : RE/MAX Camosun

Données fournies par : Vancouver Island Real Estate Board et Victoria Real Estate Board. Nous croyons que tous les renseignements affichés sont exacts, mais nous ne le garantissons pas; les renseignements devraient être vérifiés de façon indépendante.