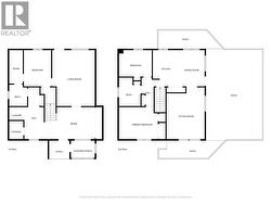
6292 Stickle Road, Vernon, British Columbia, V1B 3R2
674 900 $No. MLS® 10375900
Le contenu de cette inscription est fourni par REALTOR.ca et a été autorisé par les membres de l'Association canadienne de l'immeuble.
Photos supplémentaires
























































