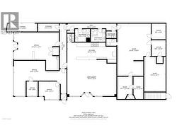
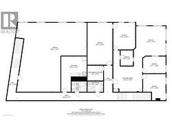
3301 Coldstream Avenue, Vernon, British Columbia, V1T 1Y1
1 890 000 $No. MLS® 10371807
Le contenu de cette inscription est fourni par REALTOR.ca et a été autorisé par les membres de l'Association canadienne de l'immeuble.
Photos supplémentaires



































