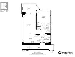
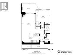
1801 32 Street Unit# 203, Vernon, British Columbia, V1T 5K4
254 900 $No. MLS® 10362902
Le contenu de cette inscription est fourni par REALTOR.ca et a été autorisé par les membres de l'Association canadienne de l'immeuble.
Photos supplémentaires









































































