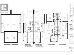
1715 Treffry Place, Summerland, British Columbia, V0H 1Z9
749 900 $No. MLS® 10372525
Le contenu de cette inscription est fourni par REALTOR.ca et a été autorisé par les membres de l'Association canadienne de l'immeuble.
Photos supplémentaires





















