Maison À vendre à Royal Oak, Saanich, Colombie-Britannique
899 900 $ ÉvaluationExpressMC:2 Chambres
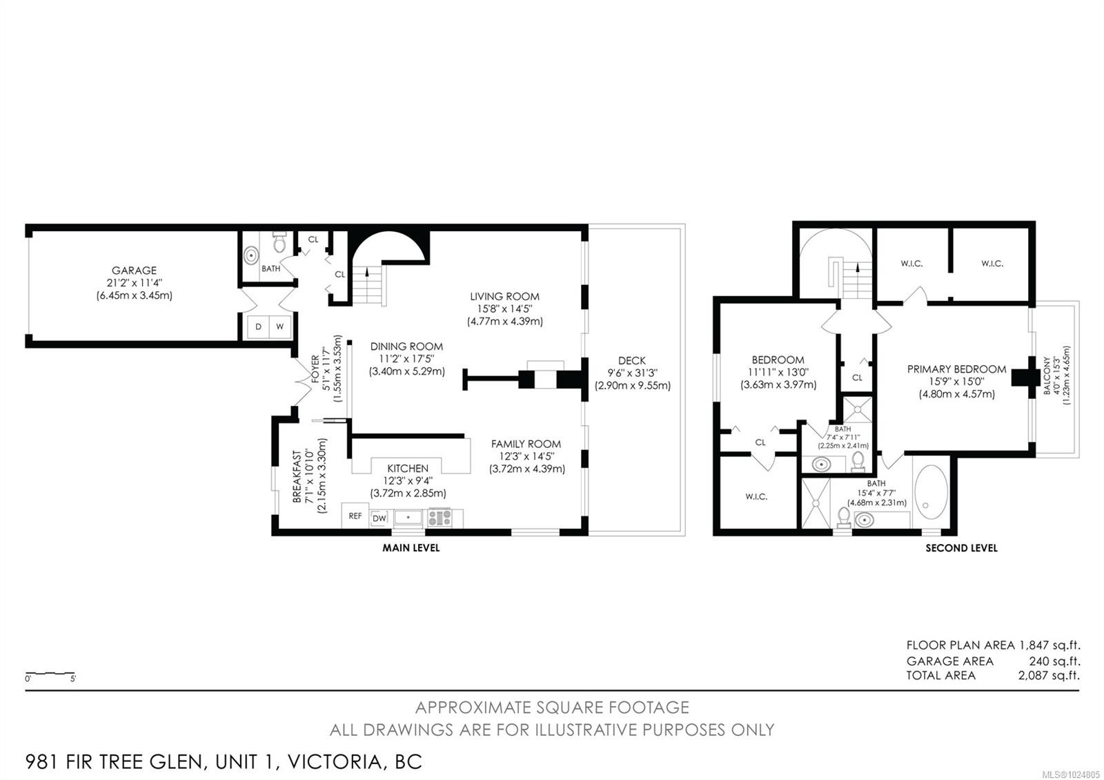
3 Salles de bain
-
Détails
-
Carte
-
Données démographiques
-
Vue de la rue
-
Itinéraire
-
Publicité








































