679 900 $

Maison À vendre à Quesnel, Colombie-Britannique

679 900 $
  • 3

    Chambres

  • 2

    Salles de bain

  • 37.43 Acres

    Dimension du terrain

Discover 37 acres of prime, flat land ideal for horses, livestock, or crops just 10 minutes from town on paved roads. This 3 bed, 2 bath home was built in 2016 (finished in 2019) and sits elevated on a knoll, offering serene views of meadows and abundant wildlife. Enjoy dyed concrete walkways encircling the home, a spacious deck, and a beautiful patio for peaceful outdoor living. Features include insulated skirting, new 24x24 wired shop with lean-to, ample parking, fencing with cross-fencing, and a new stock waterer. Recent concrete work adds polish and functionality. Efficient to heat, with a 2019 drilled well (7 gpm) and new sewer system complete with maintenance manual. Private and turnkey, this property is perfect for a hobby farm or country lifestyle. Quick possession available! (id:7525)

Particularités du bâtiment :

  • Style: Maison détachée
  • Type de bâtiment: Maison préfabriquée ou mobile
  • Fondation: Inconnu
  • Matériau de toiture: Bardeaux d'asphalte
  • Revêtement extérieur: Bardage en vinyle
  • Stationnement: Oui
  • Style de toiture: Conventionnel
  • Superficie totale aménagée: 1134 sqft
  • Surface utile: 1134 sqft
  • Type de construction: Isolée
  • Type de construction - Autre: Maison préfabriquée
  • Type de sous-sol: Pas de sous-sol
  • Type de chauffage: Air pulsé
  • Combustible de chauffage: Gaz naturel
  • Électroménagers: Lave-vaisselle, Réfrigérateur, Cuisinière

Caractéristiques :

  • Type de possession: Tenure franche
  • Type de propriété: Unifamiliale
  • Bâti en: 2016
  • Chambres : 3
  • Dimensions du terrain : 37.43 Acres
  • Irregular: Oui
  • Salle(s) de bains : 2
  • Superficie habitable (approx): 1134 Pieds carrés
  • Type de vue: Vue
  • Type de stationnement: Garage, Stationnement à ciel ouvert, VR
  • Nbre d'espaces de stationnement: 2

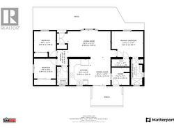
Détails des pièces :

  • Salon Niveau rez-de-chaussée 6.48 m x 3.38 m
  • Cuisine Niveau rez-de-chaussée 2.84 m x 3.45 m
  • Salle à dîner Niveau rez-de-chaussée 2.46 m x 3.71 m
  • Hall d'entrée Niveau rez-de-chaussée 2.16 m x 2.31 m
  • Chambre principale Niveau rez-de-chaussée 3.99 m x 3.48 m
  • Autre Niveau rez-de-chaussée 2.16 m x 1.09 m
  • 2e chambre Niveau rez-de-chaussée 2.95 m x 3.48 m
  • 3e chambre Niveau rez-de-chaussée 2.95 m x 2.64 m

Gracieuseté de : Royal LePage Aspire Realty

Le contenu des inscriptions fournies par REALTOR.ca a été autorisé par les membres de l'Association canadienne de l'immeuble.