Maison À vendre à Powell River, Colombie-Britannique
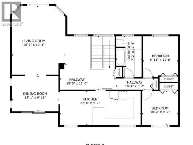
560 000 $ ÉvaluationExpressMC: Non disponible5 Chambres
2 Salles de bain
-
Détails
-
Carte
-
Données démographiques
-
Vue de la rue
-
Itinéraire
-
Publicité

























