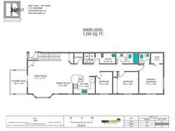
4 8507 70th Avenue, Osoyoos, British Columbia, V0H 1V0
429 000 $No. MLS® 10371778
Le contenu de cette inscription est fourni par REALTOR.ca et a été autorisé par les membres de l'Association canadienne de l'immeuble.
Photos supplémentaires





























