419 900 $

Propriété À vendre à Centre-ville, New Westminster, Colombie-Britannique

419 900 $
  • 1

    Chambre

  • 1

    Salle de bain

  • $441.8

    Frais de copropriété

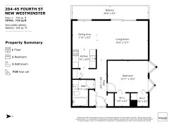
Perfect location! Dorchester House is just in front of Columbia SkyTrain Station. A bright, east-facing and well-maintained corner one-bedroom unit located in Central Downtown New Westminster. Kitchen with recently upgraded fridge, dishwasher and range. A spacious 100 sf balcony offers a bright serene outdoor space nicely shaded by trees. Roof was replaced in 2015. With a walk score of 93, a short walk to Pier Park, River Market, the Quay boardwalk and Douglas College; steps to all the shops, restaurants in new Westminster downtown. Rental and one pet under 44 lbs allowed. Ideal for a young family live-in or GREAT INVESTMENT for cash flow or future redevelopment potential. Downtown Vancouver in about 35 minutes. Metrotown in about 15 minutes.

Particularités du bâtiment :

  • Stationnement: Oui
  • Surface utile: 719 Pieds carrés

Caractéristiques :

  • Taxes annuelles totales: 2 006 $
  • Appareils ménagers: Laveuse/sécheuse, Lave-vaisselle, Réfrigérateur
  • Bâti en: 1980
  • Caractéristiques de buanderie: Espace commun
  • Caractéristiques de la communauté: Centre commercial à proximité
  • Caractéristiques de stationnement: Souterrain, Accès direct
  • Caractéristiques du terrain: Emplacement central, Marina voisine, Activités récréatives à proximité
  • Caractéristiques extérieures: Balcon
  • Chambres : 1
  • Chauffage: Plinthes
  • Commodités du syndicat: Gardien, Déchets, Terrains d'entretien, Eau chaude, Gestion, Déneigement
  • Frais de copropriété : 441 $
  • Niveaux: Un
  • Salle(s) de bains : 1+0
  • Sous-sol: Aucun
  • Superficie habitable (approx): 719 Pieds carrés
  • Type de structure: Multifamilial, Résidence mitoyenne
  • Nbre d'espaces de stationnement: 1

Gracieuseté de : Youlive Realty

The data relating to real estate on this web site comes in part from the MLS® Reciprocity program of the Greater Vancouver REALTORS®, the Fraser Valley Real Estate Board or Chilliwack & District Real Estate Board. Real estate listings held by participating real estate firms are marked with the MLS® Reciprocity logo and detailed information about the listing includes the name of the listing agent. This representation is based in whole or part on data generated by the Greater Vancouver REALTORS®, the Fraser Valley Real Estate Board or Chilliwack & District Real Estate Board which assumes no responsibility for its accuracy. The materials contained on this page may not be reproduced without the express written consent of the Greater Vancouver REALTORS®, the Fraser Valley Real Estate Board or Chilliwack & District Real Estate Board.