1 088 000 $

Maison À vendre à North Slope, Nanaimo, Colombie-Britannique

1 088 000 $
  • 4

    Chambres

  • 3

    Salles de bain

  • 19591.00 Pieds carrés

    Dimension du terrain

This is a must see, beautifully updated Big Oceanview home. Enjoy privacy, nature, & stunning ocean & forest vistas from nearly every window. Mature trees & flowering landscapes. Outdoor living is unbeatable with a 40-foot Oceanview deck for sunrises, sunsets, & BBQs. A grassy side yard + deck for multi-use & storage shed. The fully upgraded 3-level residence boasts nearly $300,000 in improvements throughout: Hardie Plank siding w/ cedar & stone accents, triple-glazed windows, new flooring, fresh paint, updated lighting, SS appliances & so much more! Take in scenic views from the Winchelsea Islands to the Vancouver skyline, w/ eagles, ferries, & sailboats. The bright, open main entertaining level connects to both decks, while all 4 bedrooms—including a reimagined primary suite—are upstairs. The lower level offers a welcoming entry, flexible office/media space, & double garage. Enjoy year-round comfort with a heat pump and fireplaces. Close to schools, shopping, beaches, parks, & trails

Caractéristiques :

  • Taxes annuelles totales: 5 754 $
  • Animaux domestiques permis: Aquariums, Oiseaux, Mammifères en cage, Chats permis, Chiens permis
  • Appareils ménagers: Laveuse et sécheuse autoportantes, Micro-ondes
  • Autre équipement: Conduits pour système d'aspiration central, Bonbonne de propane, Système de sécurité
  • Autres structures: Remise
  • Bâti en: 1992
  • Caractéristiques de buanderie: Dans la propriété
  • Caractéristiques de stationnement: Attenant, Ouvert
  • Caractéristiques des fenêtres: Fenêtres isolées, Cadres de vinyle
  • Caractéristiques du bâtiment: Système de sécurité
  • Caractéristiques du foyer: Électrique, Propane
  • Caractéristiques du terrain: Zone tranquille
  • Caractéristiques extérieures: Balcon/terrasse, Jardin faible d'entretien
  • Caractéristiques intérieures: Bar, Ventilateur(s) de plafond, Salle à manger
  • Chambres : 4
  • Chauffage: Plinthes, Thermopompe, Propane
  • Condition de la propriété: Mis à jour/rénové
  • Description du zonage: Résidentiel
  • Détails de la fondation: Blocs
  • Dimensions du terrain : 19591.00 Pieds carrés
  • Égouts: Égout à lot
  • Largeur du terrain en façade : 19591 Pieds carrés
  • Matériaux de construction: Fibrociment, Charpente en métal, Pierre, Bois
  • Propriété: Propriété franche
  • Refroidissement: Climatisation, Climatiseur(s) mural(muraux)
  • Revêtements de sol: Bois franc, Stratifié, Mixte
  • Salle(s) de bains : 3
  • Services publics: Enlèvement des ordures
  • Source d'eau: Municipal
  • Sous-sol: Aucun
  • Sous-type de propriété:
  • Superficie habitable (approx): 2517 Pieds carrés
  • Toiture: Bardeaux d'asphalte
  • Type de surface de route: Pavée
  • Vue:
  • Zonage: R1
  • Nbre d'espaces de stationnement: 7

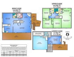
Détails des pièces :

  • Salle de divertissement Rez-de-chaussé 3.35 m x 2.92 m
  • Cuisine Rez-de-chaussé 3.43 m x 3.15 m
  • Salon Rez-de-chaussé 7.42 m x 3.96 m
  • Salle à dîner Rez-de-chaussé 4.47 m x 4.09 m
  • Salle de lavage Rez-de-chaussé 2.29 m x 1.85 m
  • Autre Rez-de-chaussé 2.64 m x 2.26 m
  • Autre Rez-de-chaussé 2.69 m x 2.11 m
  • Autre Rez-de-chaussé 11.99 m x 2.87 m
  • Salle de bains Rez-de-chaussé
  • Autre 2e niveau 6.05 m x 4.04 m

Gracieuseté de : Royal LePage Nanaimo Realty

Données fournies par : Vancouver Island Real Estate Board et Victoria Real Estate Board. Nous croyons que tous les renseignements affichés sont exacts, mais nous ne le garantissons pas; les renseignements devraient être vérifiés de façon indépendante.