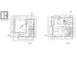
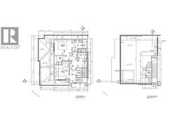
444 Eldorado Road, Kelowna, British Columbia, V1W 1G8
1 649 000 $No. MLS® 10374044
Le contenu de cette inscription est fourni par REALTOR.ca et a été autorisé par les membres de l'Association canadienne de l'immeuble.
Photos supplémentaires






















