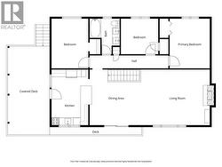
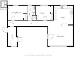
770 SHERWOOD Drive, Kamloops, British Columbia, V2B 4E5
625 000 $No. MLS® 10373033
Le contenu de cette inscription est fourni par REALTOR.ca et a été autorisé par les membres de l'Association canadienne de l'immeuble.
Photos supplémentaires
































