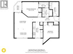
1089 McMurdo Drive Unit# 3, Kamloops, British Columbia, V2C 3G8
299 900 $No. MLS® 10372265
Le contenu de cette inscription est fourni par REALTOR.ca et a été autorisé par les membres de l'Association canadienne de l'immeuble.
Photos supplémentaires




















