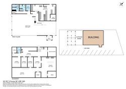
301 Highway 3, Fernie, BC, V0B 1M0
899 000 $No. MLS® 10373991
Sales Representative
Royal LePage East Kootenay Realty
*
Photos supplémentaires




































