939 000 $

Maison en rangée À vendre à Sperling-Broadway, Burnaby, Colombie-Britannique

939 000 $
  • 3

    Chambres

  • 2

    Salles de bain

  • $250

    Frais de copropriété

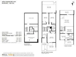
Welcome to this rare West Coast–inspired 3-bed, 2-bath townhome w/ dramatic vaulted cedar ceilings up to 17 ft. Offering 1,575 sq.ft. of well-designed living space w/ an airy, open feel, two private patios, and fenced front & back yard. A spacious rec room offers flexible use as a home office, gym, or playroom. Just a 2-min walk to Sperling SkyTrain, with quick access to SFU, Brentwood (4 min), and Downtown Vancouver (30 min), plus nearby Sperling Elem & Burnaby North Secondary. Strong investment potential <200m from SkyTrain (high-density zoning). A location that’s hard to beat. Low strata fees at $250 monthly. Bonus: 350+ sq.ft. of crawl space storage.

Particularités du bâtiment :

  • Foyer: Oui
  • Stationnement: Oui
  • Surface utile: 1575 Pieds carrés

Caractéristiques :

  • Taxes annuelles totales: 2 999 $
  • Bâti en: 1977
  • Caractéristiques de buanderie: Dans l'unité
  • Caractéristiques de la communauté: Centre commercial à proximité
  • Caractéristiques de stationnement: Abri de voiture simple, Ouvert, Invité, Accès direct
  • Caractéristiques du foyer: À bois
  • Caractéristiques du terrain: Emplacement central, Activités récréatives à proximité, Boisé
  • Caractéristiques extérieures: Balcon, Cour privée
  • Chambres : 3
  • Chauffage: Plinthes, Électrique
  • Commodités du syndicat: Déchets, Terrains d'entretien, Gestion, Égouts
  • Frais de copropriété : 250 $
  • Niveaux: Multiples/paliers
  • Salle(s) de bains : 1+1
  • Sous-sol: Vide sanitaire, Fini
  • Style architectural: 4 niveaux à paliers
  • Superficie habitable (approx): 1575 Pieds carrés
  • Type de structure: Résidence mitoyenne
  • Nbre d'espaces de stationnement: 2

Gracieuseté de : Oakwyn Realty Northwest

The data relating to real estate on this web site comes in part from the MLS® Reciprocity program of the Greater Vancouver REALTORS®, the Fraser Valley Real Estate Board or Chilliwack & District Real Estate Board. Real estate listings held by participating real estate firms are marked with the MLS® Reciprocity logo and detailed information about the listing includes the name of the listing agent. This representation is based in whole or part on data generated by the Greater Vancouver REALTORS®, the Fraser Valley Real Estate Board or Chilliwack & District Real Estate Board which assumes no responsibility for its accuracy. The materials contained on this page may not be reproduced without the express written consent of the Greater Vancouver REALTORS®, the Fraser Valley Real Estate Board or Chilliwack & District Real Estate Board.