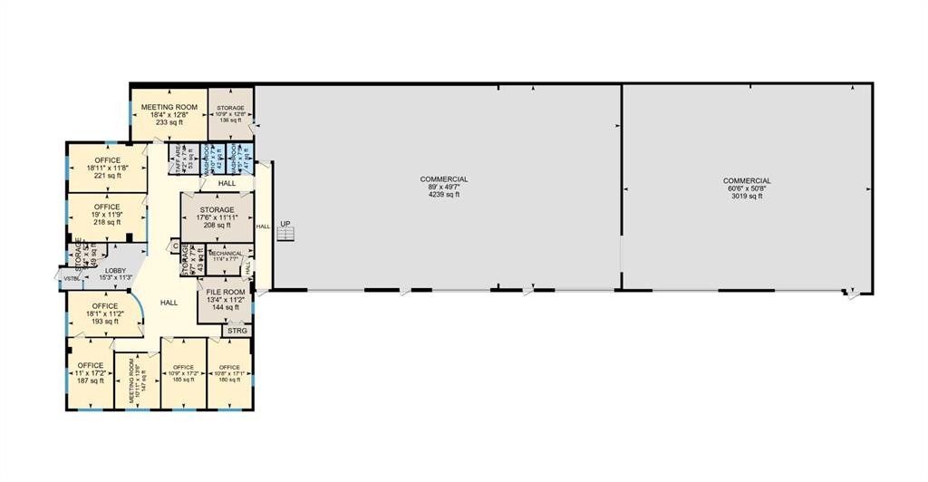
Commercial À louer à Riverside Light Industrial Park, Red Deer, Alberta
8.00 $ /année /pi. ca.None Chambres
-
Détails
-
Carte
-
Données démographiques
-
Vue de la rue
-
Itinéraire
-
Publicité
MULTIMEDIA
















