2405 4 Avenue NW, Calgary, AB, T2N 0P3
2 199 000 $No. MLS® A2264372
Maison À vendre à West Hillhurst, Calgary, Alberta
6
Chambres
6
Salles de bain
-
4340.00 Pieds carrés
Dimension du terrain
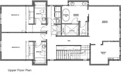
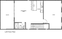
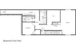
Welcome to luxury living in this stunning detached home offering over 3,000 sqft of thoughtfully designed space. From top to bottom, this residence blends elegance, functionality, and unique features that set it apart.The fully developed basement is an entertainer’s dream, complete with a spacious rec room, wet bar, bedroom, full bathroom, walk-in closet, and a private gym. A one-of-a-kind underground tunnel seamlessly connects the basement to the triple car garage, keeping you sheltered from the elements year-round.On the main floor, a grand foyer welcomes you into an open-concept layout featuring a formal dining room, hidden butler’s pantry, mudroom with a walk-in closet, and a cozy living room with a gas fireplace. A unique booth-style seating area adds charm, while the concrete patio extends the living space outdoors.The second floor is home to a spacious primary suite with a large walk-in closet and spa-like ensuite. Two additional bedrooms, each with their own ensuite, provide comfort and privacy, while the convenient upper-floor laundry completes the level.The third-floor loft elevates the home further, offering a versatile office space, wet bar with an island, entertainment area, bathroom, and a private balcony with beautiful views.A truly exceptional home in an unbeatable location—don’t miss your chance to own this one-of-a-kind masterpiece!
Particularités du bâtiment :
- Foyer: Oui
- Garage: Oui
- Stationnement: Oui
- Superficie totale aménagée: 3302.00
Caractéristiques :
- Bâti en: 2025
- Caractéristiques du foyer: Gaz
- Caractéristiques du stationnement:
- Caractéristiques extérieures: Éclairage, Autre
- Caractéristiques intérieures: Caractéristiques intégrées, Meuble-lavabo double, Plafonds hauts, Maison sans animaux, Maison sans fumée, Plan de masse ouvert, Garde-manger
- Chambres : 4+2
- Chauffage: Air pulsé
- Détails de la fondation: Béton coulé
- Dimensions du terrain : 4340.00 Pieds carrés
- Matériaux de construction: Charpente en bois
- Niveaux: Trois ou plus
- Refroidissement: Aucun
- Revêtements de sol: Moquette, Bois franc, Tuile
- Salle(s) de bains : 5+1
- Style architectural: 3 étages
- Superficie habitable (approx): 3302.00 Pieds carrés
- Toiture: Bardeaux d'asphalte
- Zonage: DC
- Nbre d'espaces de stationnement: 3
Gracieuseté de : eXp Realty
Données fournies par : Calgary Real Estate Board 300 Manning Rd. NE, Calgary, Alberta T2E 8K4
Nous croyons que tous les renseignements affichés sont exacts, mais nous ne le garantissons pas; les renseignements devraient être vérifiés de façon indépendante. Aucune garantie ou représentation de quelque nature que ce soit n’est offerte. Droits © 2021 Tous les droits sont réservés.
Photos supplémentaires





