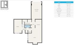
169, 79 Glamis Green SW, Calgary, Alberta, T3E 6T9
359 900 $No. MLS® A2283821
Le contenu de cette inscription est fourni par REALTOR.ca et a été autorisé par les membres de l'Association canadienne de l'immeuble.
Photos supplémentaires
































