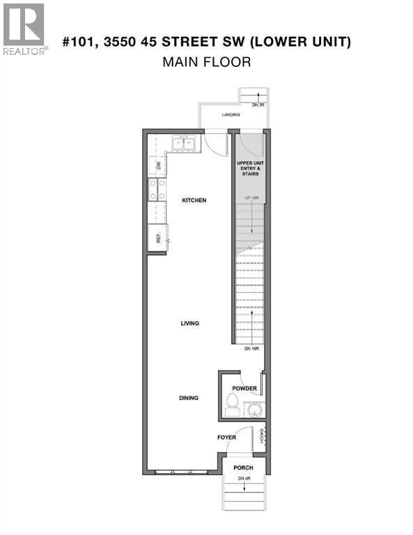
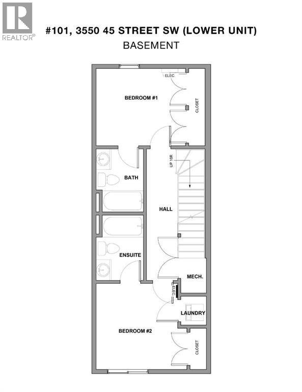
Maison en rangée À vendre à Glenbrook, Calgary, Alberta
380 000 $ ÉvaluationExpressMC: Non disponible2 Chambres
3 Salles de bain
-
Détails
-
Carte
-
Données démographiques
-
Vue de la rue
-
Itinéraire
-
Publicité
MULTIMEDIA















































