Button CopyPathCircle CloseCircle Left ArrowArrow Down Icon GreyClosecirclecircleBurger

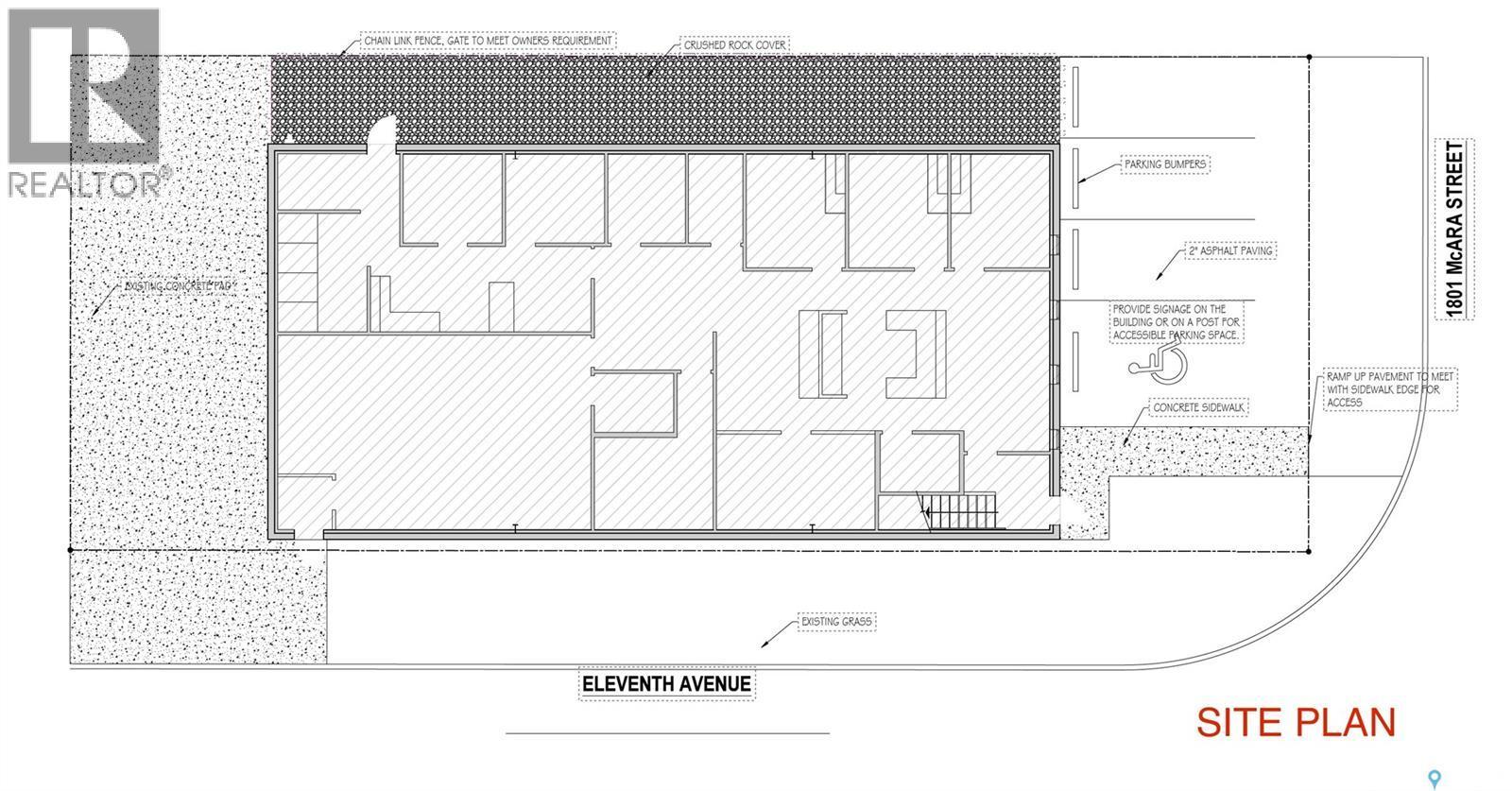
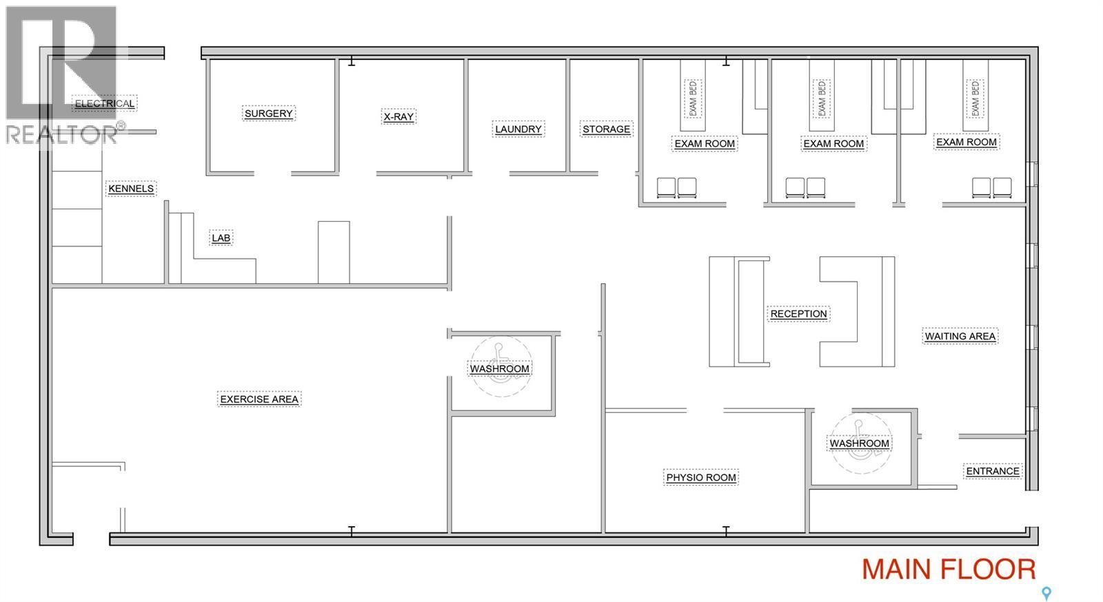
1801 Mcara Street, Regina, SK

Pas présentement à vendre avec Royal LePage

Données démographiques

Étape de vie

Familles avec parents dans la cinquantaine

Type d'emploi

Cols bleus/Primaire, Cols bleus/Industrie des services

Revenu moyen du ménage

99 219.24 $

Nombre moyen d'enfants

1,82

Population à domicile

Structure à domicile

Âge de la population

Éducation

Niveau d'éducation

No certificate/diploma/degree

21.91 %

Diplôme d'études secondaires ou équivalent

37.77 %

Certificat ou diplôme d'apprentissage ou d'une école de métiers

16.03 %

Diplôme d'études collégiales ou d'études postsecondaires (non universitaires)

12.01 %

Certificat d'études universitaires

0.46 %

Diplômes d'études universitaires

11.82 %

Navetteur

Se rendre au travail

En auto

86.5 %

En transport en commun

7.64 %

À pied

0.92 %

À bicyclette

0.0 %

Par tout autre moyen

4.94 %

Diversité Culturelle

Connaissance des langues officielles

Langue maternelle

Données Sur Le Bâtiment

Type de bâtiment

Appartements (faible hauteur et à étages multiples)

5.51 %

Maisons

94.49 %

Achat ou location

Publicité