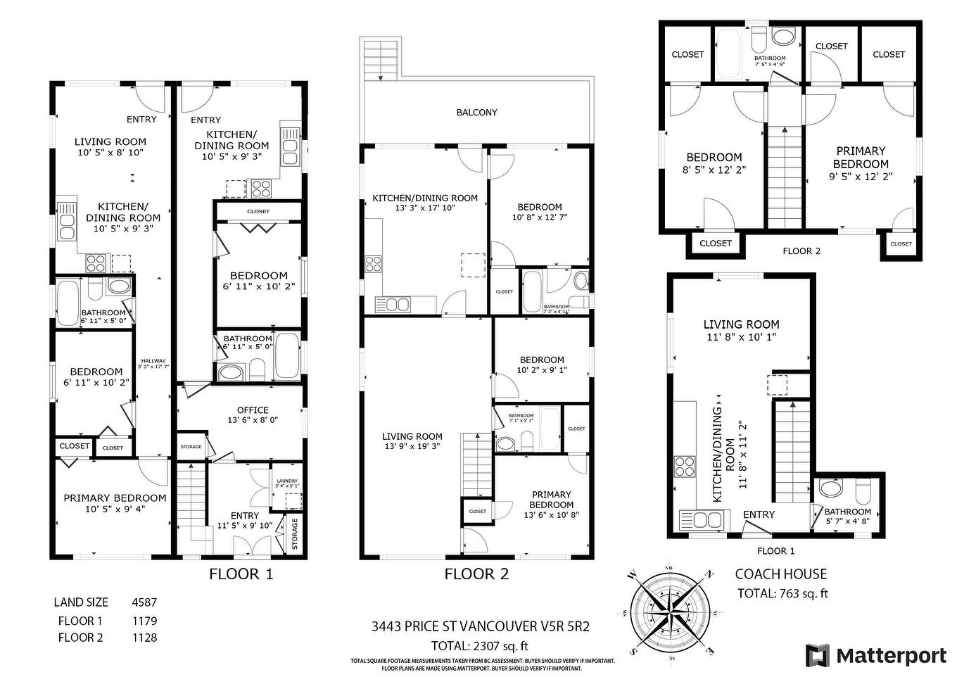
Maison À vendre à Collingwood, Vancouver, Colombie-Britannique
2 698 000 $ ÉvaluationExpressMC:9 Chambres
4 Salles de bain
-
Détails
-
Carte
-
Données démographiques
-
Vue de la rue
-
Itinéraire
-
Publicité







































