Maison À louer à Port Coquitlam, Colombie-Britannique
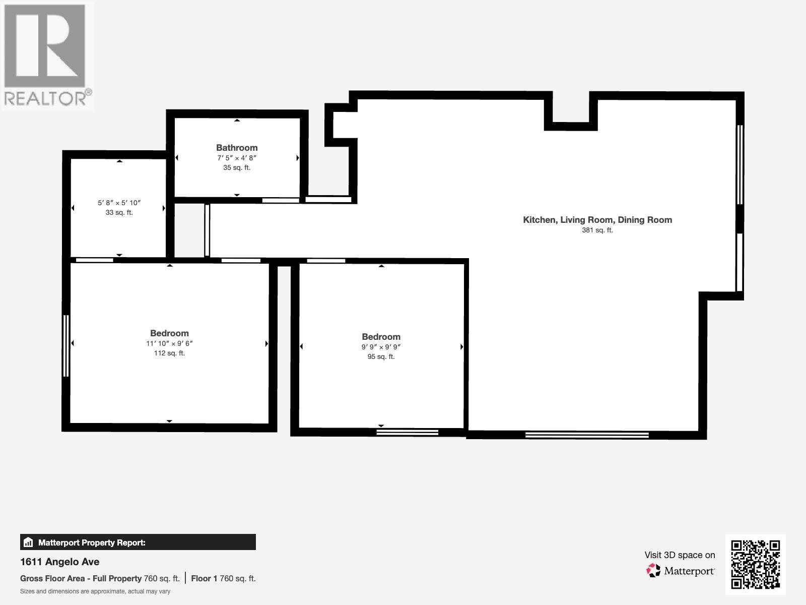
2 500.00 $ /mois2 Chambres
1 Salle de bain
-
Détails
-
Carte
-
Données démographiques
-
Vue de la rue
-
Itinéraire
-
Publicité











