11377 Av. L'Archevêque, Montréal (Montréal-Nord), QC, H1H 3B1
$475,000 +GST/QSTMLS® # 13609051
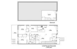
Additional Photos
11377 Av. L'Archevêque, Montréal (Montréal-Nord), QC, H1H 3B1
$475,000 +GST/QSTMLS® # 13609051
Additional Photos



















