$999,900

House For Sale In West Nipissing (Sturgeon Falls), Ontario

$999,900
  • 3

    Bedrooms

  • 3

    Baths

  • 149.7 x 556.3 FT

    Lot Size

Property Information:

Immediate possession available for this 3120 sq. ft. 3 bedroom 3 bath home with access to Lake Nipissing from a small inlet which conveniently allows for docking and has its own boat launch and a hoop outbuilding perfect for storing all your water toys. Set on a 2 acre lot close to town with all amenities a short drive away. Built in 1998, this home offers a great room/living room with an abundance of windows providing lots of natural light, a propane fireplace and 2 sets of french doors, one set off the dramatic front entry and the other to the formal dining room. Kitchen offer plenty of cabinets including pantry, a center island with propane cook top and indoor bbq and patio doors to outside deck. Down the hall there is a main floor laundry room, 2 pc bath, access to crawl space and attached double sized garage. The upper floor offers a private setting to the master bedroom with patio doors to a balcony overlooking Lake Nipissing, a large walk-in closet and a 5 pc ensuite bath with jet tub & shower. In a separate section, are 2 more bedrooms and a 4 pc bath. There is an awesome detached heated & wired garage workshop with front and back doors for convenient access to the back yard. Generator is located next to the garage. For your outdoor enjoyment there is an expansive deck, aboveground pool and a firepit. (id:27)

Building Features:

  • Style: Detached
  • Building Type: House
  • Amenities:
  • Basement Type: Crawl space
  • Construction Style - Attachment: Detached
  • Easement: Flood Plain
  • Exterior Finish: Stone, Brick
  • Fireplace: Yes
  • Floor Space: 3000 - 3500 sqft
  • Flooring Type: Ceramic
  • Foundation Type: Block
  • Heating Type: Forced air
  • Heating Fuel: Propane
  • Cooling Type: Central air conditioning, Air exchanger
  • Appliances: Central Vacuum

Property Features:

  • OwnershipType: Freehold
  • Property Type: Single Family
  • Bedrooms: 3
  • Bathrooms: 3
  • Half Bathrooms: 1
  • Access Type: Year-round access
  • Features: Level lot, Irregular lot size, Hazardous land, Lane, Level
  • Floor Space (approx): 3000 - 3500 Square Feet
  • Irregular: Yes
  • Lot Depth: 556.2 Feet
  • Lot Frontage: 149.7 Feet
  • Lot Size: 149.7 x 556.3 FT
  • Pool Type: Above ground pool
  • Structure Type: Deck, Patio(s), Dock
  • Surface Water:
  • View Type: Lake view
  • WaterFront Type: Waterfront on lake
  • Zoning: SR+HZ
  • Sewer: Septic System
  • Parking Type: Garage
  • No. of Parking Spaces: 21

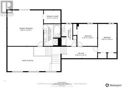
Rooms:

  • Primary Bedroom 2nd Level 5.80 m x 5.78 m
  • 2nd Bedroom 2nd Level 3.58 m x 3.25 m
  • 3rd Bedroom 2nd Level 4.62 m x 3.05 m
  • Foyer Ground Level 7.11 m x 3.96 m
  • Living Ground Level 9.03 m x 6.79 m
  • Dining Ground Level 5.80 m x 4.24 m
  • Kitchen Ground Level 5.80 m x 4.25 m
  • Laundry Ground Level 2.56 m x 1.94 m
  • Bathroom Ground Level 2.40 m x 1.78 m

Courtesy of: SUTTON-CHOICE REAL ESTATE INC., BROKERAGE

This listing content provided by REALTOR.ca has been licensed by REALTOR® members of The Canadian Real Estate Association.

This listing content provided by REALTOR.ca has been licensed by REALTOR® members of The Canadian Real Estate Association.

  • Upper balcony - master bdrm -
  • A/G pool, patio & deck with multiple access points -
  • Back view 29 x 22 det. garage (inside dimensions) -
  • Heater, electric panel and grg door openers -
  • Det. garage with  front and rear doors -
  • 48 x 36 Quonset hut -
  • Attached garage -
  • Dock,  boat ramp & access to Lake Nipissing -
  • Dramatic front entry -
  • Virtually staged AI enhanced -
  • Living room with propane fireplace -
  • French doors to foyer and dining room -
  • Virtually staged and AI enhanced living room -
  • Dining room with deck access, ceiling fan -
  • Virtually staged and AI enhanced -
  • Patio doors to deck, dishwasher -
  • Propane cooktop and gril -
  • Pantry , center island -
  • Virtually staged and AI enhanced -
  • Virtually staged and AI enhanced -
  • Main floor 2 piece bath -
  • Virtually staged and AI enhanced -
  • Main floor laundry, HW on demand -
  • Virtually staged and AI enhanced -
  • Master suite with upper deck access -
  • Virtually staged and AI enhanced master bedroom -
  • 5 pc ensuite, jet tub, shower with seat -
  • Virtually staged and AI enhanced -
  • Large walk in closet -
  • Virtually staged and AI enhanced -
  • Upper landing to 2nd & 3rd bdrm and main 4 pc bath -
  • Virtually staged and AI enhanced -
  • 2nd bedroom -
  • Virtually staged and AI enhanced -
  • Main 4 pc bath - Virtually staged and AI enhanced -
  • 3rd Bedroom -
  • Virtually staged and AI enhanced 3rd bdrm -
  • 3rd bedroom wall to wall closet with organizer -
  • Boat ramp -
  • Snow covered dock -
  • Firepit -
  • Generator -
  • Main Floor Plan -
  • Second Floor Plan -