$599,900

House For Sale In Tiny, Ontario

$599,900
  • 4

    Bedrooms

  • 2

    Baths

  • 170 x 150 FT

    Lot Size

Property Information:

Have you ever walked into a home and instantly felt at ease? The kind of place that feels like a deep breath the moment you step inside. This is that house. Tucked into a quiet, forested setting and backing onto greenbelt, this property offers privacy, starry skies, birdsong and the kind of calm that's getting harder to find. Surrounded by nature yet just minutes from one of Tiny's best sandy beaches, you truly get the best of both worlds, peaceful rural living without feeling far from everything. Set on an expansive 170 x 150 ft double-wide lot, there is room to breathe, room to play, and room to imagine what's next. The oversized insulated garage, built in 2011, with electrical is perfect for hobbies, storage or a future workshop. An additional 10x12 shed also offers additional outdoor storage. High-speed internet is available, so working from home or streaming is seamless. Inside, the home is filled with soft, natural light that keeps the space feeling bright and uplifting all day long. With four bedrooms, two bathrooms and a spacious eat-in kitchen, there is flexibility for growing families, guests or even in-law potential. The layout feels welcoming and functional, a home that simply feels good to be in. When you fall in love with this house, it just might love you right back. Although the lot cannot be severed, there is the potential to build an accessory dwelling, or perhaps a shop (to be confirmed with Township). Recent improvements include: Windows - 2021 * New flooring throughout, Updated bathrooms * Seamless Eavestroughs * Jet pump and pressure tank* Garage - New Panel & Exterior Light* all in 2024 * and New deck - Oct 2025 * Age of Shingles - 2011. (id:27)

Building Features:

  • Style: Detached
  • Building Type: House
  • Architectural Style: Raised bungalow
  • Basement Type: Full
  • Construction Style - Attachment: Detached
  • Exterior Finish: Vinyl siding
  • Fire Protection: Smoke Detectors
  • Floor Space: 700 - 1100 sqft
  • Foundation Type: Block
  • Heating Type: Baseboard heaters
  • Heating Fuel: Electric
  • Cooling Type: None
  • Appliances: Water Treatment, Dishwasher, Dryer, Stove, Washer, Refrigerator

Property Features:

  • OwnershipType: Freehold
  • Property Type: Single Family
  • Bedrooms: 4
  • Bathrooms: 2
  • Amenities Nearby: Park
  • Community Features: School Bus
  • Features: Wooded area, Irregular lot size, Backs on greenbelt
  • Floor Space (approx): 700 - 1100 Square Feet
  • Irregular: Yes
  • Landscape Features: Landscaped
  • Lot Depth: 150 Feet
  • Lot Frontage: 170 Feet
  • Lot Size: 170 x 150 FT
  • Structure Type: Deck, Patio(s), Shed
  • Surface Water:
  • Utility Type: Hydro - Installed
  • Zoning: RR
  • Sewer: Septic System
  • Parking Type: Detached garage, Garage
  • No. of Parking Spaces: 5

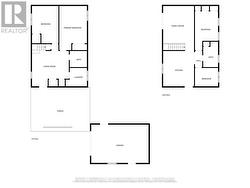
Rooms:

  • Living Main Level 4.53 m x 4.57 m
  • Primary Bedroom Main Level 5.46 m x 3.42 m
  • 2nd Bedroom Main Level 4.60 m x 3.28 m
  • Laundry Main Level 2.27 m x 2.64 m
  • Kitchen Upper Level 4.38 m x 3.84 m
  • Family Upper Level 5.56 m x 3.83 m
  • 3rd Bedroom Upper Level 2.27 m x 2.87 m
  • 4th Bedroom Upper Level 4.81 m x 2.87 m

Courtesy of: Keller Williams Co-Elevation Realty, Brokerage

This listing content provided by REALTOR.ca has been licensed by REALTOR® members of The Canadian Real Estate Association.

This listing content provided by REALTOR.ca has been licensed by REALTOR® members of The Canadian Real Estate Association.

  • Wahnekewaning Beach -
  • Wahnekewaning Beach -
  • Wahnekewaning Beach -