$924,900

House For Sale In Stratford, Ontario

$924,900
  • 4

    Bedrooms

  • 4

    Baths

  • 69.5 x 190 FT

    Lot Size

Property Information:

Divine on Devon. Welcome to this beautifully updated 4-bedroom, 4-bath family home backing directly onto Stratford Country Club, offering privacy, peaceful views, and room for everyone on a rare 190' deep lot. Designed with everyday living and entertaining in mind, the backyard features a walk-out to a spacious deck with hot tub and pergola-perfect for family gatherings, quiet evenings, or watching the kids play while enjoying the view. Inside, the main level offers a warm and inviting living room with a stone gas fireplace, a dedicated home office ideal for remote work or homework, main-floor laundry, and convenient access to the attached 2-car garage. The 2017 renovation brought a stunning wrap-around kitchen with granite countertops, oversized refrigerator, double ovens, and generous storage-an ideal hub for family meals and entertaining. Upstairs, the primary bedroom offers serene views of the golf course and a 3-piece ensuite, creating a private retreat. Three additional spacious bedrooms, including two with built-in desks, provide flexible space for children, guests, or study areas. The lower level is perfectly suited for multigenerational living or added income, featuring a self-contained granny suite with kitchen, bathroom, and living room. The remaining basement space offers ample storage, a workout area, or room to create a playroom, hobby space, or teen retreat. A wonderful opportunity to grow, gather, and make lasting memories in this exceptional house. (id:27)

Building Features:

  • Style: Detached
  • Building Type: House
  • Basement Development: Partially finished
  • Basement Type: N/A, N/A, N/A
  • Construction Style - Attachment: Detached
  • Exterior Finish: Brick, Vinyl siding
  • Fireplace: Yes
  • Floor Space: 2500 - 3000 sqft
  • Foundation Type: Poured Concrete
  • Heating Type: Forced air
  • Heating Fuel: Natural gas
  • Cooling Type: Central air conditioning
  • Appliances: Garage door opener remote, Central Vacuum, Water softener, Water purifier, All

Property Features:

  • OwnershipType: Freehold
  • Property Type: Single Family
  • Bedrooms: 4
  • Bathrooms: 4
  • Half Bathrooms: 2
  • Features: Guest Suite
  • Floor Space (approx): 2500 - 3000 Square Feet
  • Irregular: Yes
  • Lot Depth: 190 Feet
  • Lot Frontage: 69.5 Feet
  • Lot Size: 69.5 x 190 FT
  • Sewer: Sanitary sewer
  • Parking Type: Attached garage, Garage
  • No. of Parking Spaces: 6

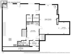
Rooms:

  • 3rd Bedroom 2nd Level 3.85 m x 4.35 m
  • 4th Bedroom 2nd Level 3.50 m x 4.63 m
  • Bathroom 2nd Level 2.70 m x 2.58 m
  • Bedroom 2nd Level 4.47 m x 4.36 m
  • Bathroom 2nd Level 4.47 m x 1.81 m
  • 2nd Bedroom 2nd Level 2.73 m x 3.47 m
  • Family Basement Level 4.24 m x 7.27 m
  • Den Basement Level 2.72 m x 3.02 m
  • Kitchen Basement Level 3.19 m x 4.57 m
  • Bathroom Basement Level 2.87 m x 1.19 m
  • Exercise Basement Level 11.00 m x 3.70 m
  • Living Main Level 3.62 m x 6.81 m
  • Kitchen Main Level 5.29 m x 4.26 m
  • Dining Main Level 3.62 m x 4.04 m
  • Family Main Level 14.40 m x 24.80 m
  • Office Main Level 2.90 m x 3.27 m
  • Laundry Main Level 2.37 m x 2.15 m
  • Bathroom Main Level 2.11 m x 2.03 m

Courtesy of: Sutton Group - First Choice Realty Ltd.

This listing content provided by REALTOR.ca has been licensed by REALTOR® members of The Canadian Real Estate Association.

This listing content provided by REALTOR.ca has been licensed by REALTOR® members of The Canadian Real Estate Association.