115 FEAIRS DRIVE, Southgate, Ontario, N0G 1N0
$890,000MLS® # X12603332
House For Sale In Southgate, Ontario
3
Bedrooms
2
Baths
-
59.4 x 57.7 M
Lot Size
Property Information:
This Stunning pre-construction bungalow offers 1,682sqft of thoughtfully designed one-level living on nearly a one-acre country lot, complete with an attached double garage, open-concept floor plan, and a bright, spacious design throughout. The home features a durable exterior of aluminum siding and brick, a large rear deck ideal for outdoor living, and interiors highlighted by quartz countertops, premium cabinetry, and beautiful finishes. Inside, you'll find three bedrooms and two full bathrooms, including a luxurious primary suite with walk-in closet, soaker tub, tiled shower, and high-end fixtures, plus the convenience of main-floor laundry. The basement will be left unfinished but framed and insulated, making it ready for future conversion into living space. The expansive yard offers endless possibilities for gardens, outdoor living, or future structures, with the builder also offering to construct matching accessory buildings such as a shed or shop. Built by RCC Custom Homes, a trusted local Mount Forest builder, every detail is completed with care, integrity, and craftsmanship using trades and suppliers from Wellington and Grey Counties, with materials sourced from established community businesses. Known for flexibility, the builder gives buyers the ability to customize finishes, adjust layouts, finish the basement, or personalize details to suit their lifestyle. The property backs onto open farmland, ensuring privacy with no neighbours or future buildings to the rear, sits on a cul-de-sac street with no thru traffic, off a well-maintained country road with reliable snow plowing, offering quick access, less than 10 minutes to Mount Forest and 20 minutes to Shelburne. A private drilled well and oversized septic system add to the homes self-sufficiency. With Tarion New Home Warranty protection, Spring 2026 occupancy, and a home built with the pride of a local builder, this is a rare opportunity to enjoy modern comfort, rural charm, and long-term peace of mind. (id:7525)
Building Features:
- Style: Detached
- Building Type: House
- Architectural Style: Bungalow
- Basement Development: Unfinished
- Basement Type: Full
- Construction Style - Attachment: Detached
- Exterior Finish: Aluminum siding, Stone
- Floor Space: 1500 - 2000 sqft
- Foundation Type: Poured Concrete
- Heating Type: Forced air
- Heating Fuel: Propane
- Cooling Type: Central air conditioning
- Appliances: Garage door opener, Hood Fan
Property Features:
- OwnershipType: Freehold
- Property Type: Single Family
- Bedrooms: 3
- Bathrooms: 2
- Features: Sump Pump
- Floor Space (approx): 1500 - 2000 Square Feet
- Irregular: Yes
- Lot Depth: 57.71 Metre
- Lot Frontage: 59.439 Metre
- Lot Size: 59.4 x 57.7 M
- Zoning: R5
- Sewer: Septic System
- Parking Type: Attached garage, Garage
- No. of Parking Spaces: 8
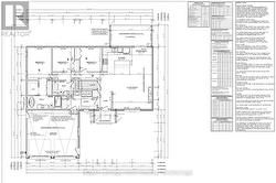
Rooms:
- Bedroom Main Level 4.54 m x 3.35 m 14.90 ft x 10.99 ft
- 2nd Bedroom Main Level 3.35 m x 3.04 m 10.99 ft x 9.97 ft
- 3rd Bedroom Main Level 3.35 m x 3.04 m 10.99 ft x 9.97 ft
- Kitchen Main Level 3.84 m x 3.44 m 12.60 ft x 11.29 ft
- Dining Main Level 3.44 m x 3.04 m 11.29 ft x 9.97 ft
- Living Main Level 5.46 m x 5.27 m 17.91 ft x 17.29 ft
- Foyer Main Level 2.43 m x 2.04 m 7.97 ft x 6.69 ft
- Laundry Main Level 3.96 m x 1.82 m 12.99 ft x 5.97 ft
- Bathroom Main Level 2.74 m x 2.01 m 8.99 ft x 6.59 ft
- Bathroom Main Level 4.57 m x 1.82 m 14.99 ft x 5.97 ft
Courtesy of: Royal LePage RCR Realty
This listing content provided by REALTOR.ca has been licensed by REALTOR® members of The Canadian Real Estate Association.
Additional Photos



