700 LATIMER WAY, Peterborough, Ontario, K9K 0H4
$679,900MLS® # X12739462
House For Sale In Lily Lake, Peterborough, Ontario
4
Bedrooms
3
Baths
-
25 x 108 FT
Lot Size
Property Information:
Picture Homes is pleased to introduce The Trails of Lily Lake, our newest community in the west end of Peterborough. This 4 bedroom, 3 bathroom townhome spans 1880 sqft above grade, making it the perfect place to call home. With a welcoming front porch, leading you to the formal entrance to make a statement as you enter the home, to a gas fire place in the family room. This is the perfect space to entertain. An eat in kitchen offers the home owner, family and friends plenty of options to dine. Upstairs, you are greeted by 4 well appointed bedrooms, including an ensuite and walk in closet in the primary. The ensuite comes equipped with an oval soaking tube and a glass shower, for an extra WOW factor. Not to mention, upstairs laundry! This pretty as a picture neighbourhood is bordered on one side by protected conservation lands and offers direct access to the meandering Jackson Creek and scenic Trans-Canada Trail lands. The community also features a centrally located community park for residents.We take pride in offering our purchasers a variety of new home designs that suit their lifestyle perfectly. Every one of these plans feature outstanding floor plan layouts, exceptional curb appeal and the excellent value they have come to expect from Picture Homes.What better place for your family to put down roots than in Peterborough, a growing city with small town values filled with beautiful heritage buildings and parks. (id:27)
Building Features:
- Style: Detached
- Building Type: House
- Basement Development: Unfinished
- Basement Type: N/A
- Construction Style - Attachment: Detached
- Exterior Finish: Brick
- Fireplace: Yes
- Floor Space: 1500 - 2000 sqft
- Foundation Type: Concrete
- Heating Type: Forced air
- Heating Fuel: Natural gas
- Cooling Type: Central air conditioning
Property Features:
- OwnershipType: Freehold
- Property Type: Single Family
- Bedrooms: 4
- Bathrooms: 3
- Half Bathrooms: 1
- Floor Space (approx): 1500 - 2000 Square Feet
- Irregular: Yes
- Lot Depth: 108 Feet
- Lot Frontage: 25 Feet
- Lot Size: 25 x 108 FT
- Sewer: Sanitary sewer
- Parking Type: Attached garage, Garage
- No. of Parking Spaces: 4
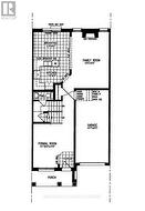
Rooms:
- Primary Bedroom 2nd Level 5.33 m x 3.05 m 17.49 ft x 10.01 ft
- 2nd Bedroom 2nd Level 3.50 m x 2.54 m 11.48 ft x 8.33 ft
- 3rd Bedroom 2nd Level 3.05 m x 3.10 m 10.01 ft x 10.17 ft
- 4th Bedroom 2nd Level 3.35 m x 3.69 m 10.99 ft x 12.11 ft
- Laundry 2nd Level Measurements not available
- Family Main Level 5.48 m x 3.65 m 17.98 ft x 11.98 ft
- Dining Main Level 4.26 m x 3.96 m 13.98 ft x 12.99 ft
Courtesy of: HOMEWISE REAL ESTATE
This listing content provided by REALTOR.ca has been licensed by REALTOR® members of The Canadian Real Estate Association.
This listing content provided by REALTOR.ca has been licensed by REALTOR® members of The Canadian Real Estate Association.
Additional Photos



