450 TREMBLAY ROAD, Ottawa, Ontario, K1G 0C9
$749,000MLS® # X12726656
House For Sale In East Industrial, Ottawa, Ontario
4
Bedrooms
2
Baths
-
60 x 99 FT
Lot Size
Property Information:
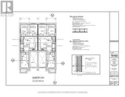
Permit ready and ready to build! A rare corner lot offering exceptional potential in a highly sought-after location. With severance already in placeto build legal semi-detached duplexes, this property presents an outstanding opportunity for builders, developers, or investors looking tocapitalize on Ottawa's growing urban market.This property is ideally situated steps from the Train Yards, offering access to a wide array of retailshops, restaurants, and services. Commuters will appreciate being within walking distance to the LRT, St Laurent shopping center, and just ashort drive to downtown Ottawa, Costco, and Ottawa University, ensuring convenience and connectivity to all parts of the city.Included with thelisting are survey, grading plan, and floorplans, providing a head start on your next project. The corner lot location enhances design flexibility,offering multiple frontages and excellent exposure.Whether you're looking to build for resale, rental income, or long-term investment, 450Tremblay Road delivers the ideal blend of location, infrastructure, and development readiness.Don't miss this rare opportunity in one of Ottawa'smost accessible and amenity-rich neighbourhoods! R3 U Zoning. (id:27)
Building Features:
- Style: Detached
- Building Type: House
- Amenities:
- Architectural Style: Raised bungalow
- Basement Development: Finished
- Basement Type: N/A, N/A
- Construction Style - Attachment: Detached
- Exterior Finish: Brick, Stone
- Fireplace: Yes
- Floor Space: 700 - 1100 sqft
- Foundation Type: Poured Concrete
- Heating Type: Forced air
- Heating Fuel: Natural gas
- Cooling Type: Central air conditioning
Property Features:
- OwnershipType: Freehold
- Property Type: Single Family
- Bedrooms: 2+2
- Bathrooms: 2
- Floor Space (approx): 700 - 1100 Square Feet
- Irregular: Yes
- Landscape Features: Landscaped
- Lot Depth: 99 Feet
- Lot Frontage: 60 Feet
- Lot Size: 60 x 99 FT
- Pool Type: Inground pool
- Structure Type: Patio(s)
- Zoning: R3M
- Sewer: Sanitary sewer
- Parking Type: No Garage
- No. of Parking Spaces: 2
Rooms:
- Bathroom Basement Level 1.91 m x 1.32 m 6.27 ft x 4.33 ft
- Laundry Basement Level 3.12 m x 3.68 m 10.24 ft x 12.07 ft
- Living Basement Level 4.50 m x 3.23 m 14.76 ft x 10.60 ft
- Kitchen Basement Level 3.68 m x 3.23 m 12.07 ft x 10.60 ft
- 3rd Bedroom Basement Level 3.00 m x 3.68 m 9.84 ft x 12.07 ft
- 4th Bedroom Basement Level 4.29 m x 2.92 m 14.07 ft x 9.58 ft
- Living Ground Level 4.67 m x 4.62 m 15.32 ft x 15.16 ft
- Kitchen Ground Level 5.48 m x 4.14 m 17.98 ft x 13.58 ft
- Dining Ground Level 3.98 m x 2.38 m 13.06 ft x 7.81 ft
- Primary Bedroom Ground Level 4.69 m x 3.37 m 15.39 ft x 11.06 ft
- 2nd Bedroom Ground Level 3.65 m x 2.74 m 11.98 ft x 8.99 ft
- Bathroom Ground Level 2.74 m x 2.13 m 8.99 ft x 6.99 ft
Courtesy of: COLDWELL BANKER FIRST OTTAWA REALTY
This listing content provided by REALTOR.ca has been licensed by REALTOR® members of The Canadian Real Estate Association.
This listing content provided by REALTOR.ca has been licensed by REALTOR® members of The Canadian Real Estate Association.
Additional Photos















