$799,900

House For Sale In Thorner, Hamilton, Ontario

$799,900
  • 4

    Bedrooms

  • 2

    Baths

  • 4

    Parking Spaces

Property Information:

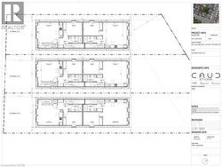
Discover a rare investment opportunity in a prime Hamilton Mountain location—complete with drawings for three future triplexes. This property combines immediate rental income with exceptional development potential, offering the best of both worlds for savvy investors or visionaries ready to build. The existing 4-bedroom home has been thoughtfully updated, blending functionality with inviting, contemporary charm. The bright, open layout includes a spacious living area, a well-equipped kitchen with generous cabinetry, and a finished loft perfect for a home office, studio, or creative retreat. With three-car parking plus a garage, there’s no shortage of space for family or tenants alike. The lower level provides additional flex space—ideal for storage, a fitness zone, or a future recreation room. Conveniently located just minutes from the LINC, public transit, schools, shopping, and major amenities, this property is perfectly positioned for both comfort and connectivity. Currently rented for $2,616.25 per month, it delivers strong, steady cash flow while offering the exciting prospect of a multi-residential future. Whether you choose to hold, enhance, or build, this is an address where opportunity meets potential. (id:27)

Building Features:

  • Style: Detached
  • Building Type: House
  • Basement Development: Finished
  • Basement Type: Full
  • Construction Style - Attachment: Detached
  • Exterior Finish: Vinyl siding
  • Floor Space: 1462 sqft
  • Heating Type: Forced air
  • Heating Fuel: Natural gas
  • Cooling Type: Central air conditioning
  • Appliances: Dryer, Refrigerator, Stove, Washer

Property Features:

  • OwnershipType: Freehold
  • Property Type: Single Family
  • Bedrooms: 4
  • Bathrooms: 2
  • Access Type: Highway access
  • Amenities Nearby: Hospital, Park, Schools, Shopping
  • Floor Space (approx): 1462 Square Feet
  • Lot Depth: 156 Feet
  • Lot Frontage: 80 Feet
  • Zoning: R1
  • Sewer: Municipal sewage system
  • Parking Type: Attached garage
  • No. of Parking Spaces: 4

Rooms:

  • Bedroom 2nd Level 14'3'' x 10'0''
  • Loft 2nd Level 21'7'' x 10'0''
  • Utility Basement Level Measurements not available
  • Bathroom Basement Level Measurements not available
  • Recreation Room Basement Level 24'2'' x 17'2''
  • Bedroom Main Level 10'3'' x 9'0''
  • Bedroom Main Level 11'7'' x 11'7''
  • Primary Bedroom Main Level 14'2'' x 10'0''
  • Bathroom Main Level Measurements not available
  • Kitchen Main Level 15'10'' x 11'4''
  • Living Main Level 11'3'' x 14'3''

Courtesy of: RE/MAX Escarpment Realty Inc.

This listing content provided by REALTOR.ca has been licensed by REALTOR® members of The Canadian Real Estate Association.

This listing content provided by REALTOR.ca has been licensed by REALTOR® members of The Canadian Real Estate Association.

  • Rendering -
  • Rendering -