$2,200,000

Investment For Sale In Hamilton, Ontario

$2,200,000

Property Information:

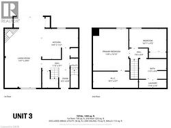
Rare opportunity to acquire a 10.1-acre parcel at the corner of a high-traffic highway, offering exceptional visibility, strong frontage, and long-term upside. Located just minutes to the airport, this strategically positioned property is currently zoned primarily Agricultural and provides immediate income potential with future redevelopment or severance possibilities, subject to approvals. The property includes two versatile, freestanding buildings with separately metered units, offering flexibility for a range of uses such as residential, office, or service-related applications (subject to zoning). The buildings comprise a total of five self-contained units, all vacant, allowing a purchaser to establish market rents or occupy as required. The unit mix includes one one-bedroom unit and four two-bedroom units. With excellent access, a prominent corner location, and exposure along a major corridor surrounded by agricultural and service-commercial uses, this offering is ideal for investors, owner-operators, or buyers seeking land banking opportunities with income and future potential. (id:27)

Building Features:

  • Style: Multiplex
  • Basement Development: Unfinished
  • Basement Type: Full
  • Exterior Finish: Stucco
  • Floor Space: 4009 sqft
  • Foundation Type: Block
  • Heating Type: Forced air
  • Heating Fuel: Natural gas
  • Cooling Type: None

Property Features:

  • OwnershipType: Freehold
  • Property Type: Multi-family
  • Bedrooms: 9
  • Bathrooms: 6
  • Access Type: Road access, Highway access
  • Amenities Nearby: Airport, Golf Nearby
  • Built in: 1975
  • Community Features: High Traffic Area, School Bus
  • Features: Crushed stone driveway
  • Floor Space (approx): 4009 Square Feet
  • Irregular: Yes
  • Lot Depth: 607 Feet
  • Lot Frontage: 699 Feet
  • Lot Size: 10.10 Acres
  • Zoning: A1/P8
  • Sewer: Septic System
  • No. of Parking Spaces: 20

Courtesy of: RE/MAX Escarpment Realty Inc.

This listing content provided by REALTOR.ca has been licensed by REALTOR® members of The Canadian Real Estate Association.

This listing content provided by REALTOR.ca has been licensed by REALTOR® members of The Canadian Real Estate Association.