$19.00

Commercial For Lease In Landsdale, Hamilton, Ontario

$19.00

Property Information:

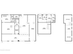
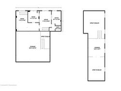
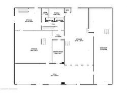
Prime Commercial Building with Additional Parking Lot – For Lease in Downtown Hamilton with Drive in bay and office space.A fantastic opportunity to lease a freestanding commercial building with 7,568 sq ft of flexible space, ideally situated in a high-traffic, high-visibility area of Downtown. With a generous lot size 97.11 ft x 115.24 ft and BOUNS vacant parking lot 371 Cannon Street East 90.19 ft x 39.07 ft it makes perfect place for staff and customer access – approximately 25 parking available. The main property has been most recently used as an auto parts store. Zoned C2, this property supports a wide range of commercial uses such as medical Clinic, Veterinary Service, Financial Establishment, Retail and much more—making it ideal for various types of businesses looking to grow or relocate.Whether you're launching a new venture or expanding your current operations, this space offers exceptional flexibility, zoning advantages and well-established commercial corridor with strong foot and vehicle traffic and rare on-site parking in the heart of the city.

Building Features:

  • Floor Space: 7568 Square Feet

Property Features:

  • Bedrooms: 0
  • Acres Range: < 0.5
  • Basement: None
  • Construction Materials: Brick Veneer, Block
  • Floor Space (approx): 7568 Square Feet
  • Interior Features: High Speed Internet
  • Lot Depth: 115 Feet
  • Lot Features: Irregular Lot, Business Centre, City Lot, High Traffic Area, Highway Access, Hospital, Industrial Mall, Public Transit, Visual Exposure
  • Lot Frontage: 95.50 Feet
  • Road Frontage Type: Municipal Road
  • Security Features: Other
  • Utilities: Electricity Connected, Natural Gas Connected, Recycling Pickup, Street Lights, Phone Connected, Other
  • Water Source: Municipal
  • Zoning: C2
  • Sewer: Sewer (Municipal)
  • No. of Parking Spaces: 25

Courtesy of: Right at Home Realty, Non-MEM Brokerage

This listing content provided by REALTOR.ca has been licensed by REALTOR® members of The Canadian Real Estate Association.