$1,149,000
  • Open House
    Sun Feb. 15 2:00 PM - 4:00 PM

House For Sale In Kirkendall South, Hamilton, Ontario

$1,149,000
  • 3

    Bedrooms

  • 3

    Baths

  • 35.5 x 105 FT

    Lot Size

Property Information:

Public Remarks: South Kirkendall welcomes you to 25 Orchard Hill! This extensively renovated home, originally built in 1912 with a significant 1,000 sf addition in 2017, seamlessly blends classic charm with modern luxury. Step inside and be impressed by the large open-concept main floor, featuring rich dark hardwood floors throughout. The gorgeous coffered ceilings in the dining area add an elegant touch. The stunning kitchen is a chef's dream, boasting sleek granite countertops, high-end stainless steel appliances, including a stylish range hood, and an abundance of grey cabinetry for storage. A spacious kitchen island with seating provides a perfect spot for casual meals and entertaining. The addition includes a highly functional and beautifully designed laundry/mudroom, complete with a stacked washer and dryer, built-in storage solutions, a convenient sink, and a practical bench with hooks and drawers. Upstairs, you'll find large, bright bedrooms, all featuring hardwood floors and ample natural light. The beautifully updated washrooms showcase modern fixtures and finishes. The Master Bedroom offers a true sanctuary with its own en-suite featuring a luxurious soaker tub situated under a skylight, perfect for unwinding. Outside, the property boasts a good-sized backyard with a well-maintained lawn, a wooden deck ideal for outdoor relaxation, and mature trees offering shade and privacy. Beyond the beautiful interiors, the location at 25 Orchard Hill is exceptional. Nestled in the MOST desirable neighbourhood in Hamilton, you'll enjoy easy access to fantastic parks and trails, including the popular Chedoke Park, nearby Victoria Park, and the scenic Bruce Trail. You'll also appreciate being within walking distance to Aberdeen & Locke Street's vibrant shops and restaurants, amazing schools, and public transit. Don't miss your chance to own this "super cool hipster" home in a prime location! Come and take a look before it's gone. (id:7525)

Building Features:

  • Style: Detached
  • Building Type: House
  • Basement Development: Unfinished
  • Basement Type: N/A
  • Construction Style - Attachment: Detached
  • Exterior Finish: Stone, Vinyl siding
  • Floor Space: 1500 - 2000 sqft
  • Flooring Type: Hardwood, Tile
  • Foundation Type: Stone
  • Heating Type: Forced air
  • Heating Fuel: Natural gas
  • Cooling Type: Central air conditioning
  • Appliances: Dryer, Hood Fan, Range, Gas stove(s), Washer, Window Coverings, Refrigerator

Property Features:

  • OwnershipType: Freehold
  • Property Type: Single Family
  • Bedrooms: 3
  • Bathrooms: 3
  • Half Bathrooms: 1
  • Features: Carpet Free
  • Floor Space (approx): 1500 - 2000 Square Feet
  • Irregular: Yes
  • Lot Depth: 105 Feet
  • Lot Frontage: 35.5 Feet
  • Lot Size: 35.5 x 105 FT
  • Zoning: R1a
  • Sewer: Sanitary sewer
  • Parking Type: No Garage
  • No. of Parking Spaces: 2

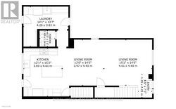
Rooms:

  • Den 2nd Level 3.06 m x 2.88 m
  • Primary Bedroom 2nd Level 4.43 m x 4.37 m
  • Bathroom 2nd Level 4.06 m x 2.55 m
  • 2nd Bedroom 2nd Level 3.13 m x 3.17 m
  • 3rd Bedroom 2nd Level 4.25 m x 3.72 m
  • Bathroom 2nd Level 3.13 m x 2.18 m
  • Living Main Level 4.61 m x 4.40 m
  • Dining Main Level 3.97 m x 4.40 m
  • Kitchen Main Level 3.69 m x 4.61 m
  • Laundry Main Level 4.28 m x 3.83 m

Courtesy of: Royal LePage Macro Realty

This listing content provided by REALTOR.ca has been licensed by REALTOR® members of The Canadian Real Estate Association.