$679,000

House For Sale In Bruleville, Hamilton, Ontario

$679,000
  • 2

    Bedrooms

  • 2

    Baths

  • 0.12 Acres

    Lot Size

Property Information:

Welcome to this immaculate Bruleville bungalow, offered for the first time by the original owners. This move-in ready and meticulously maintained home features a functional 2-bedroom, 2-bathroom floor plan that can be effortlessly restored to its original 3-bedroom main floor design. The finished basement offers expansive living space, a large private office (or guest space), and plenty of finished storage. With the added benefit of a separate side entrance, the lower level provides fantastic potential for an in-law suite or secondary unit. Enjoy peace of mind with major upgrades including the furnace (2012), roof (2011), and A/C (2008). The exterior has been beautifully enhanced with a new rear deck (2024) and a brand-new front porch (2025), both professionally contracted with full permits. Whether you are a first-time buyer, a growing family, or an investor seeking duplex potential, this home delivers quality and value in a prime Hamilton location. (id:27)

Building Features:

  • Style: Detached
  • Building Type: House
  • Architectural Style: Bungalow
  • Basement Development: Finished
  • Basement Type: Full
  • Construction Style - Attachment: Detached
  • Exterior Finish: Brick, Vinyl siding
  • Floor Space: 1100 sqft
  • Foundation Type: Unknown
  • Heating Type: Forced air
  • Heating Fuel: Natural gas
  • Cooling Type: Central air conditioning
  • Appliances: Dishwasher, Dryer, Refrigerator, Stove, Washer, Window Coverings

Property Features:

  • OwnershipType: Freehold
  • Property Type: Single Family
  • Bedrooms: 2
  • Bathrooms: 2
  • Half Bathrooms: 1
  • Amenities Nearby: Park, Playground, Public Transit, Schools, Shopping
  • Built in: 1962
  • Community Features: Quiet Area
  • Floor Space (approx): 1100 Square Feet
  • Irregular: Yes
  • Lot Depth: 102 Feet
  • Lot Frontage: 50 Feet
  • Lot Size: 0.12 Acres
  • Zoning: C
  • Sewer: Municipal sewage system
  • No. of Parking Spaces: 4

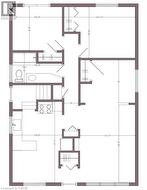
Rooms:

  • Storage Basement Level 12'7'' x 11'11''
  • Utility Basement Level 12'10'' x 14'0''
  • Bathroom Basement Level Measurements not available
  • Recreation Room Basement Level 22'8'' x 11'9''
  • Office Basement Level 16'0'' x 13'8''
  • Bathroom Main Level 6'3'' x 10'5''
  • Bedroom Main Level 9'2'' x 10'5''
  • Primary Bedroom Main Level 10'9'' x 14'11''
  • Kitchen Main Level 17'1'' x 10'5''
  • Dining Main Level 9'0'' x 11'7''
  • Living Main Level 16'4'' x 11'7''

Courtesy of: Real Broker Ontario Ltd.

This listing content provided by REALTOR.ca has been licensed by REALTOR® members of The Canadian Real Estate Association.

This listing content provided by REALTOR.ca has been licensed by REALTOR® members of The Canadian Real Estate Association.