$1,120,000

House For Sale In Guelph (York/Watson Industrial Park), Ontario

$1,120,000
  • 4

    Bedrooms

  • 3

    Baths

  • 151.9 x 138 FT

    Lot Size

Property Information:

500 Watson Pkwy S is a versatile 3+1 bdrm home W/over 3100sqft of living space W/perfect layout for main floor in-law or income suite W/its own private entrance! This home offers best of both worlds: peaceful country-style living with scenic views while being mins to UofG, Stone Rd Mall, groceries, schools & trails! Ideal fit for multigenerational families, blended households or savvy buyers looking for flexible living arrangements & rental potential. Step inside to living room W/rich hardwood, picture windows & 2 skylights. Adjacent dining area W/cork flooring opens to kitchen W/panoramic windows, custom wood cabinetry, butcher block counters, farmhouse sink & sleek panel-ready fridge that blends seamlessly into the design. For entertainers & chefs the add'l prep kitchen provides storage, beverage fridge & 2nd sink-perfect for hosting holidays or everyday life. Sitting nook leads to back patio-perfect spot to enjoy morning coffee while listening to the birds. On opposite wing, 2nd living room W/fireplace & B/I bench seating sets the stage for family evenings. This wing also offers kitchenette, renovated 4pc bath W/soaker tub, W/I shower & bdrm with W/I closet-ideal for in-law suite or private guest quarters. Upstairs the primary bdrm offers large windows, private balcony & W/I closet W/custom organizers. Off the primary is flexible office space or dressing area & massive bonus room-currently set up as theatre & games room with 3-way fireplace, B/I speakers & projector system. There is another bdrm & 5pc bath W/dual sinks & tub/shower. Finished bsmt W/4th bdrm, 3pc bath, sauna & storage. Outside the large yard has multiple entertaining areas: back patio, private side deck, greenhouse & shed. With triple-wide driveway + add'l driveway there's more than enough room for guests, work vehicles, trailers & toys. Can easily park 10+ cars! Mins to Starkey Hill & Smith Property Loop for weekend hikes & bike rides. A Warm inviting space with room to grow & space for everyone! (id:27)

Building Features:

  • Style: Detached
  • Building Type: House
  • Amenities:
  • Basement Development: Finished
  • Basement Type: Full
  • Construction Style - Attachment: Detached
  • Construction Style - Split Level: Sidesplit
  • Exterior Finish: Wood, Brick
  • Fireplace: Yes
  • Floor Space: 2500 - 3000 sqft
  • Foundation Type: Block
  • Heating Type: Forced air, Not known, Not known
  • Heating Fuel: Natural gas, Geo Thermal
  • Cooling Type: Central air conditioning
  • Appliances: Dishwasher, Dryer, Stove, Washer, Refrigerator

Property Features:

  • OwnershipType: Freehold
  • Property Type: Single Family
  • Bedrooms: 3+1
  • Bathrooms: 3
  • Amenities Nearby: Golf Nearby, Public Transit
  • Community Features: School Bus
  • Features: Conservation/green belt
  • Floor Space (approx): 2500 - 3000 Square Feet
  • Irregular: Yes
  • Lot Depth: 138 Feet
  • Lot Frontage: 151.8 Feet
  • Lot Size: 151.9 x 138 FT
  • Zoning: R1B
  • Sewer: Septic System
  • Parking Type: Attached garage, Garage
  • No. of Parking Spaces: 10

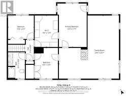
Rooms:

  • Bathroom 2nd Level Measurements not available
  • Family 2nd Level 7.80 m x 7.47 m
  • Primary Bedroom 2nd Level 5.36 m x 3.66 m
  • 3rd Bedroom 2nd Level 3.20 m x 2.92 m
  • Office 2nd Level 3.81 m x 2.90 m
  • 4th Bedroom Basement Level 3.91 m x 3.53 m
  • Bathroom Basement Level Measurements not available
  • Laundry Basement Level 2.51 m x 2.08 m
  • Kitchen Main Level 5.26 m x 3.00 m
  • Dining Main Level 3.17 m x 3.02 m
  • Living Main Level 6.71 m x 3.84 m
  • Pantry Main Level 3.58 m x 3.51 m
  • Bathroom Main Level Measurements not available
  • Living Main Level 5.41 m x 4.39 m
  • 2nd Bedroom Main Level 4.95 m x 3.73 m

Courtesy of: RE/MAX Real Estate Centre Inc

This listing content provided by REALTOR.ca has been licensed by REALTOR® members of The Canadian Real Estate Association.

This listing content provided by REALTOR.ca has been licensed by REALTOR® members of The Canadian Real Estate Association.

  • Photo has been virtually staged -
  • Photo has been virtually staged -