$699,900

House For Sale In Grimsby Downtown, Grimsby, Ontario

$699,900
  • 2

    Bedrooms

  • 3

    Baths

  • 2

    Parking Spaces

Property Information:

This charming end-unit freehold townhome is nestled in a warm, family-friendly neighbourhood with scenic views of the Niagara Escarpment. A private side entrance opens into a beautifully maintained and stylishly decorated space. The formal dining and great rooms feature hardwood floors, crown moulding, and sliding doors leading to a deck overlooking the backyard. The bright eat-in kitchen offers plenty of cabinets, quartz countertops, a built-in microwave, and a large side window that fills the main floor with natural light. Just a few steps down is a 2-piece bathroom with an updated vanity. On the way to the second level, a spacious landing can serve as an office or cozy sitting area. The upper level boasts a huge loft with double doors to the laundry area. The large primary bedroom is bathed in light from oversized windows and includes a walk-in closet and ensuite with a corner soaker tub and separate shower stall. A good-sized second bedroom also enjoys a large window. The recently finished basement features a family room or could be a great 3rd bedroom retreat, with its own 3 pce bathroom and an oversized window, double closet storage, and rough-in for a wet bar or second kitchen and utility room with extra storage. Outside, an expanded composite deck leads down to a large concrete patio and maintenance-free backyard, perfect for entertaining or relaxing. A covered patio section is ideal for hot or rainy days, and a shed provides extra outdoor storage. Concrete stairs lead up to the main entry, and the single-car garage offers convenient inside access to the foyer. The shingles were replaced in 2025. This delightful neighbourhood is close to parks, a community centre, QEW and GO access, schools, Lake Ontario, shopping, golf, wineries, and more. Comfort, convenience, and beauty make this the perfect place for your next move. (id:27)

Building Features:

  • Style: Townhouse
  • Building Type: Row / Townhouse
  • Architectural Style: 2 Level
  • Basement Development: Finished
  • Basement Type: Full
  • Construction Style - Attachment: Attached
  • Exterior Finish: Brick, Vinyl siding, Steel
  • Fire Protection: Smoke Detectors
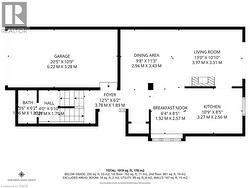
  • Floor Space: 1919 sqft
  • Foundation Type: Poured Concrete
  • Heating Type: Forced air
  • Heating Fuel: Natural gas
  • Cooling Type: Central air conditioning
  • Appliances: Central Vacuum - Roughed In, Dishwasher, Dryer, Refrigerator, Washer, Microwave Built-in, Garage door opener

Property Features:

  • OwnershipType: Freehold
  • Property Type: Single Family
  • Bedrooms: 2
  • Bathrooms: 3
  • Half Bathrooms: 1
  • Access Type: Highway access
  • Amenities Nearby: Golf Nearby, Hospital, Marina, Park, Playground, Schools, Shopping
  • Built in: 2008
  • Community Features: Community Centre
  • Features: Paved driveway, Automatic Garage Door Opener
  • Floor Space (approx): 1919 Square Feet
  • Lot Depth: 92 Feet
  • Lot Frontage: 26 Feet
  • Structure Type: Shed
  • Zoning: ND
  • Sewer: Municipal sewage system
  • Parking Type: Attached garage
  • No. of Parking Spaces: 2

Rooms:

  • Laundry 2nd Level Measurements not available
  • Bedroom 2nd Level 10'11'' x 10'9''
  • Bathroom 2nd Level Measurements not available
  • Primary Bedroom 2nd Level 21'3'' x 11'4''
  • Loft 2nd Level 10'10'' x 17'5''
  • Other 2nd Level 6'0'' x 6'2''
  • Utility Basement Level 8'2'' x 10'11''
  • Bathroom Basement Level Measurements not available
  • Family Basement Level 14'2'' x 15'7''
  • Bathroom Main Level Measurements not available
  • Kitchen Main Level 17'1'' x 8'5''
  • Great Room Main Level 13'0'' x 10'10''
  • Dining Main Level 9'8'' x 11'3''

Courtesy of: RE/MAX Garden City Realty Inc.

This listing content provided by REALTOR.ca has been licensed by REALTOR® members of The Canadian Real Estate Association.

This listing content provided by REALTOR.ca has been licensed by REALTOR® members of The Canadian Real Estate Association.

  • Foyer looking towards stairs to upper level -
  • Hardwood floors, crown moulding -
  • Dining Room looking towards Great Room -
  • Hardwood floors, sliding door to deck -
  • looking towards Dining Room and kitchen -
  • Landing used as office -
  • Stairs to upper level -
  • Large Walk in closet in Primary Bedroom -
  • Ensuite privilege with corner soaker tub -
  • Corner shower -
  • Bedroom #2 -
  • Upper level laundry -
  • Stairs to 2 pc bathroom and lower level -
  • 2 pce bathroom -
  • Deck overlooking patio and backyard -
  • Stairs to backyard -
  • Main Floor -
  • Upper level -
  • Basement -