99 SOUTH PARKWOOD Boulevard, Elmira, Ontario, N3B 0E6
$899,900MLS® # 40800836
House For Sale In Elmira, Ontario
4
Bedrooms
3
Baths
-
3
Parking Spaces
Property Information:
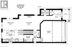
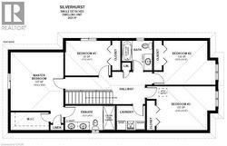
Introducing Verdone Homes new Single Detached model with over 2000 sq feet, 4 beds and 3 baths to be built in Elmira's Southwood Park Subdivision! Welcome to 99 South Parkwood Blvd, located close to walking trails and farmland, this brand new beauty combines the serenity of small town living with the convenience of a 5 minute drive to Waterloo. This 2-storey home features an impressive main floor layout with an eat-in Kitchen, custom cabinetry, large island and a convenient butlers pantry. The second floor features a laundry room, 2 bathrooms, 4 good sized bedrooms including a luxurious primary suite with walk in shower. Verdone Homes is a local builder with a reputation of integrity and quality craftmanship. Act now to make this YOUR dream home with YOUR finishes! (id:27)
Building Features:
- Style: Detached
- Building Type: House
- Architectural Style: 2 Level
- Basement Development: Unfinished
- Basement Type: Full
- Construction Style - Attachment: Detached
- Exterior Finish: Brick, Stone, Vinyl siding
- Floor Space: 2025 sqft
- Foundation Type: Poured Concrete
- Heating Type: Forced air
- Heating Fuel: Natural gas
- Cooling Type: Central air conditioning
Property Features:
- OwnershipType: Freehold
- Property Type: Single Family
- Bedrooms: 4
- Bathrooms: 3
- Half Bathrooms: 1
- Access Type: Highway access
- Amenities Nearby: Golf Nearby, Park, Playground, Public Transit, Schools
- Built in: 2026
- Community Features: Community Centre
- Features: Sump Pump
- Floor Space (approx): 2025 Square Feet
- Lot Depth: 105 Feet
- Lot Frontage: 36 Feet
- Zoning: R5A
- Sewer: Municipal sewage system
- Parking Type: Attached garage
- No. of Parking Spaces: 3
Rooms:
- Laundry 2nd Level Measurements not available
- Bathroom 2nd Level Measurements not available
- Bathroom 2nd Level 12'3'' x 8'3''
- Bedroom 2nd Level 11'2'' x 8'7''
- Bedroom 2nd Level 10'9'' x 10'10''
- Bedroom 2nd Level 12'8'' x 10'10''
- Primary Bedroom 2nd Level 13'0'' x 14'5''
- Bathroom Main Level Measurements not available
- Living Main Level 17'0'' x 11'7''
- Dining Main Level 13'8'' x 9'1''
- Kitchen Main Level 17'1'' x 9'8''
Courtesy of: Royal LePage Wolle Realty
This listing content provided by REALTOR.ca has been licensed by REALTOR® members of The Canadian Real Estate Association.
Additional Photos


