27 SULMON STREET, Belleville (Thurlow Ward), Ontario, K8N 0S5
$718,900MLS® # X12474862
House For Sale In Belleville (Thurlow Ward), Ontario
3
Bedrooms
2
Baths
-
52 x 108 FT
Lot Size
Property Information:
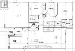
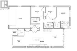
This custom brand new Staikos Built home is perfect for those looking for that open concept design. The dining room and great room sit to either side of the large kitchen and offer a clear sightline from the front door to the back of the house. This results in a home that is ideal for entertaining. Three large bedrooms offer up space for the entire family, and the separate mud room and laundry room is always a favourite design. The back of the great room is all glass with a large patio door offering great access to the back covered patio area for those family get togethers. Featuring 9-foot ceilings, premium quartz kitchen counters, high-quality stacked to the ceiling cabinets, island with storage, seating, and entertaining space. A great room with a gorgeous 10-foot tray ceiling. Canadian made engineered oak or maple hardwood flooring cover the main floor areas, while premium porcelain tiles grace the front entrance, mudroom/ laundry room, and bathrooms. High quality carpet in the bedrooms with option to upgrade. The primary bedroom features a spacious walk-in closet and a stunning ensuite. Buyers have the freedom to make all interior selections and colours to suit their preferences. Conveniently located near all amenities, including the 401, great schools, parks, and river view walking trails. (id:27)
Building Features:
- Style: Detached
- Building Type: House
- Architectural Style: Bungalow
- Basement Development: Unfinished
- Basement Type: Full
- Construction Style - Attachment: Detached
- Exterior Finish: Brick
- Fire Protection: Smoke Detectors
- Floor Space: 1500 - 2000 sqft
- Foundation Type: Poured Concrete
- Heating Type: Forced air
- Heating Fuel: Natural gas
- Cooling Type: Central air conditioning
- Appliances:
Property Features:
- OwnershipType: Freehold
- Property Type: Single Family
- Bedrooms: 3
- Bathrooms: 2
- Amenities Nearby: Golf Nearby, Hospital, Schools, Park
- Community Features: School Bus
- Features: Conservation/green belt
- Floor Space (approx): 1500 - 2000 Square Feet
- Irregular: Yes
- Lot Depth: 108.0 Feet
- Lot Frontage: 52.0 Feet
- Lot Size: 52 x 108 FT
- Zoning: R1-23
- Sewer: Sanitary sewer
- Parking Type: Attached garage, Garage
- No. of Parking Spaces: 4
Rooms:
- Foyer Ground Level 2.19 m x 1.82 m 7.19 ft x 5.97 ft
- Bathroom Ground Level 2.89 m x 1.61 m 9.48 ft x 5.28 ft
- Dining Ground Level 4.87 m x 3.04 m 15.98 ft x 9.97 ft
- Kitchen Ground Level 5.18 m x 4.69 m 16.99 ft x 15.39 ft
- Great Room Ground Level 5.39 m x 4.84 m 17.68 ft x 15.88 ft
- Mudroom Ground Level 2.40 m x 1.24 m 7.87 ft x 4.07 ft
- Laundry Ground Level 2.40 m x 1.85 m 7.87 ft x 6.07 ft
- Primary Bedroom Ground Level 4.26 m x 3.87 m 13.98 ft x 12.70 ft
- Bathroom Ground Level 2.59 m x 1.82 m 8.50 ft x 5.97 ft
- 2nd Bedroom Ground Level 3.62 m x 3.04 m 11.88 ft x 9.97 ft
- 3rd Bedroom Ground Level 3.65 m x 3.16 m 11.98 ft x 10.37 ft
Courtesy of: EXIT REALTY GROUP
This listing content provided by REALTOR.ca has been licensed by REALTOR® members of The Canadian Real Estate Association.
This listing content provided by REALTOR.ca has been licensed by REALTOR® members of The Canadian Real Estate Association.
Additional Photos







