$479,900

House For Sale In St. John's, Newfoundland and Labrador

$479,900
  • 3

    Bedrooms

  • 3

    Baths

  • 22 x 203 x 73 x 83 x 203

    Lot Size

Property Information:

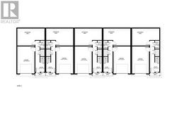
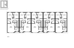
Welcome to 34 Donegal Run, offered at $479,900, featuring The Griffiths by New Victorian Homes, a thoughtfully designed centre-unit townhome within an exclusive fiveplex in the heart of Galway Living, St. John’s, with expected occupancy in early fall 2026. Galway is one of the city’s most sought-after master-planned communities, known for its balance of nature and convenience, where residents enjoy walkable streets, interconnected trails, parks and green space, proximity to the GlenDenning , and easy access to major amenities including Costco, shopping, restaurants, schools, and highway connections that make commuting effortless. This modern multi-unit townhome offers 1,618 square feet of well-designed living space with three bedrooms, two and a half bathrooms, and an attached garage, ideal for those seeking contemporary living with low maintenance and high-quality construction. The interior layout is finished with a refined, modern aesthetic, featuring sleek design elements, expansive windows that flood the home with natural light, and an open, functional flow that is perfectly suited for intimate entertaining and everyday comfort. The turnkey offering includes a fully serviced lot, premium exterior finishes, a paved driveway, full landscaping with nursery sods up to 100ft back and patio deck, an unfinished insulated basement with future bathroom rough-in, and is backed by a 10-year transferable Atlantic Home Warranty and New Victorian Homes’ one-year wall-to-wall builder coverage, with additional options available for basement development or further customization, making this an exceptional opportunity to embrace modern living within the vibrant and growing Galway community. (id:27)

Building Features:

  • Style: Detached
  • Building Type: House
  • Architectural Style: 3 Level
  • Exterior Finish: Wood shingles, Vinyl siding
  • Floor Space: 2108 sqft
  • Flooring Type: Laminate
  • Foundation Type: Poured Concrete
  • Heating Type: Baseboard heaters
  • Heating Fuel: Electric

Property Features:

  • OwnershipType: Freehold
  • Property Type: Single Family
  • Bedrooms: 3
  • Bathrooms: 3
  • Half Bathrooms: 1
  • Access Type: Year-round access
  • Amenities Nearby: Highway, Recreation, Shopping
  • Built in: 2026
  • Floor Space (approx): 2108 Square Feet
  • Irregular: Yes
  • Landscape Features: Landscaped
  • Lot Size: 22 x 203 x 73 x 83 x 203
  • View Type: View
  • Zoning: RES
  • Sewer: Municipal sewage system
  • Parking Type: Attached garage

Rooms:

  • Bathroom 2nd Level 4PC
  • Laundry 2nd Level 7'3"" x 3'1""
  • Bedroom 2nd Level 12'0"" x 9'0""
  • Bedroom 2nd Level 12'0"" x 9'0""
  • Ensuite Bathroom 2nd Level 8'0"" x 7'4""
  • Primary Bedroom 2nd Level 15'10"" x 13'1""
  • Foyer Basement Level 7'4"" x 7'3""
  • Bathroom Main Level 5'10"" x 5'9""
  • Other Main Level 5'9"" x 4'10""
  • Dining Main Level 14'9"" 8'0""
  • Kitchen Main Level 15'0"" x 14'7""
  • Living Main Level 17'5"" x 13'8""

Courtesy of: Atlantic Team Realty Incorporated

This listing content provided by REALTOR.ca has been licensed by REALTOR® members of The Canadian Real Estate Association.

This listing content provided by REALTOR.ca has been licensed by REALTOR® members of The Canadian Real Estate Association.

  • Sample interior renders -
  • Sample interior renders -
  • Sample interior renders -
  • Sample interior renders -
  • Sample interior renders -
  • Sample photo from previous build -
  • AI Rendering -
  • Photos of a Previous Build -
  • Photos of a Previous Build -
  • Photos of a Previous Build -
  • Photos of a Previous Build -
  • Photos of a Previous Build -
  • Photos of a Previous Build -
  • Photos of a Previous Build -
  • Photos of a Previous Build -
  • Photos of a Previous Build -
  • Photos of a Previous Build -
  • Photos of a Previous Build -