$1,788,000

House For Sale In White Rock, British Columbia

$1,788,000
  • 2

    Bedrooms

  • 2

    Baths

  • 4500.00 Square Feet

    Lot Size

Property Information:

Prime Corner Lot with Exceptional Views – Ideal for Your Dream Oceanview Home Rare opportunity to own a corner lot with an existing older house, perfectly positioned for redevelopment into your dream oceanview residence. Enjoy stunning ocean views, mountain views, and picturesque White Rock Pier views, all within walking distance to White Rock Pier and the beach. Located in a highly desirable neighborhood, this property is within the catchment of Bayridge Elementary School and Semiahmoo Secondary School, making it ideal for families or long-term investment. An outstanding location offering lifestyle, views, and future potential — a truly exceptional opportunity in one of White Rock’s most sought-after areas.

Building Features:

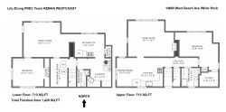
  • Floor Space: 1426 Square Feet

Property Features:

  • Bedrooms: 2
  • Bathrooms: 1+1
  • Annual Tax Amount: $9,101
  • Appliances: Washer/Dryer, Dishwasher, Refrigerator
  • Basement: None
  • Built in: 1950
  • Exterior Features: No Outdoor Area
  • Fireplace Features: Wood Burning
  • Floor Space (approx): 1426 Square Feet
  • Heating: Natural Gas
  • Levels: Two
  • Lot Frontage: 56.9 Feet
  • Lot Size: 4500.00 Square Feet
  • Parking Features: Other, Lane Access, Side Access
  • Structure Type: Residential Detached
  • No. of Parking Spaces: 5

Courtesy of: RE/MAX Westcoast

The data relating to real estate on this web site comes in part from the MLS® Reciprocity program of the Greater Vancouver REALTORS®, the Fraser Valley Real Estate Board or Chilliwack & District Real Estate Board. Real estate listings held by participating real estate firms are marked with the MLS® Reciprocity logo and detailed information about the listing includes the name of the listing agent. This representation is based in whole or part on data generated by the Greater Vancouver REALTORS®, the Fraser Valley Real Estate Board or Chilliwack & District Real Estate Board which assumes no responsibility for its accuracy. The materials contained on this page may not be reproduced without the express written consent of the Greater Vancouver REALTORS®, the Fraser Valley Real Estate Board or Chilliwack & District Real Estate Board.