2527 Pinnacle Ridge Drive, West Kelowna, British Columbia, V4T 0G4
$1,890,000MLS® # 10355190
House For Sale In Shannon Lake, West Kelowna, British Columbia
5
Bedrooms
5
Baths
-
7
Parking Spaces
Property Information:
Welcome to 2527 Pinnacle Ridge Drive in beautiful West Kelowna, BC. This stunning 4,135 sq ft home offers luxury living with a modern, functional floor plan and exceptional attention to detail. Featuring a spacious 3-car garage plus a tandem bay, this home includes a one-bedroom legal suite—perfect for guests or rental income. Built to exceed current code standards, it’s also energy-efficient, using 40% less energy than the average new home (EnerGuide™ rated). Enjoy a large backyard with a private pool complete with an auto-cover, and take in the breathtaking lake and mountain views. Located on a quiet, no-through road just 5 minutes from groceries, schools, and gyms, this property offers both privacy and convenience. Built by award-winning Operon Homes, a licensed BC builder and member of the Canadian Home Builders Association, this home comes with a New Home Warranty (PHW) for peace of mind. Don't miss this rare opportunity to own a high-performance, thoughtfully designed home. (id:27)
Building Features:
- Style: Detached
- Building Type: House
- Architectural Style: Contemporary
- Construction Style - Attachment: Detached
- Exterior Finish: Concrete, Stone
- Fire Protection:
- Fireplace Fuel: Gas
- Fireplace Type: Unknown
- Floor Space: 4135 sqft
- Flooring Type: Hardwood, Tile, Vinyl
- Roof Material: Roof Material
- Roof Style: Unknown
- Heating Type: Heat Pump
- Cooling Type: Central air conditioning, Heat Pump
- Appliances: Refrigerator, Dishwasher, Dryer, Freezer, Oven - gas, Humidifier, Microwave, Oven, Hood Fan
Property Features:
- OwnershipType: Freehold
- Property Type: Single Family
- Bedrooms: 5
- Bathrooms: 5
- Half Bathrooms: 1
- Amenities Nearby: Golf Nearby, Park, Recreation, Shopping
- Built in: 2025
- Community Features: Family Oriented
- Features: Private setting, Central island, Balcony
- Fence Type: Fence
- Floor Space (approx): 4135 Square Feet
- Landscape Features: Landscaped
- Pool Type: Inground pool, Pool
- View Type: City view, Mountain view, View (panoramic)
- Sewer: Municipal sewage system
- Parking Type: Attached garage, Oversize, RV
- No. of Parking Spaces: 7
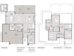
Rooms:
- Bathroom 2nd Level 11'10'' x 5'
- Bedroom 2nd Level 12'2'' x 12'10''
- Bedroom 2nd Level 10'6'' x 12'
- Bathroom 2nd Level 8'1'' x 10'9''
- Primary Bedroom 2nd Level 8'1'' x 10'9''
- Other 2nd Level 7'8'' x 14'7''
- Bathroom Lower Level 8'3'' x 8'4''
- Recreation Room Lower Level 20'2'' x 16'
- Bathroom Lower Level 6'5'' x 7'10''
- Bedroom Lower Level 9'9'' x 14'
- Bedroom Lower Level 11'0'' x 12'4''
- Living Main Level 18' x 16'
- Dining Main Level 18' x 16'
- Kitchen Main Level 13'5'' x 18'
- Mudroom Main Level 11'9'' x 9'0''
- Foyer Main Level 7'0'' x 12'9''
- Bathroom Main Level 8'2'' x 5'0''
- Den Main Level 10'6'' x 12'10''
- Other Main Level 10'0'' x 26'4''
- Other Main Level 20'1'' x 19'10''
Courtesy of: ComFree
This listing content provided by REALTOR.ca has been licensed by REALTOR® members of The Canadian Real Estate Association.
This listing content provided by REALTOR.ca has been licensed by REALTOR® members of The Canadian Real Estate Association.
Additional Photos





