$775,000

House For Sale In Vernon, British Columbia

$775,000
  • 6

    Bedrooms

  • 4

    Baths

  • 0.14 Acres

    Lot Size

Property Information:

***COURT ORDERED SALE - Fully occupied and income generating home - Updated and versatile home in a sought-after Vernon family neighbourhood! Upstairs offers a bright 3 bedroom, 2 bathroom layout with modern updates throughout. Downstairs, you’ll find two self-contained and updated income producing suites – a 2 bedroom/1 bath and a 1 bedroom/1 bath – perfect for extended family or generating rental income. Whether you’re a first-time home buyer looking to offset your mortgage or an investor searching for strong rental potential, this property checks all the boxes. Conveniently located close to schools, parks, and amenities, this is a move-in ready opportunity you don’t want to miss! ****COURT ORDERED SALE - Reach out for more information on the Court Ordered Sale and the current rental rates. (id:27)

Building Features:

  • Style: Detached
  • Building Type: House
  • Basement Type: Full
  • Construction Style - Attachment: Detached
  • Exterior Finish:
  • Fireplace Type: Free Standing Metal, Unknown
  • Floor Space: 2207 sqft
  • Flooring Type: Carpeted, Laminate, Vinyl
  • Roof Material: Asphalt shingle
  • Roof Style: Unknown
  • Heating Type: Forced air
  • Cooling Type: Central air conditioning

Property Features:

  • OwnershipType: Freehold
  • Property Type: Single Family
  • Bedrooms: 6
  • Bathrooms: 4
  • Access Type: Easy access
  • Amenities Nearby: Schools, Shopping, Ski area
  • Built in: 1975
  • Community Features: Family Oriented
  • Features: Level lot
  • Fence Type: Fence
  • Floor Space (approx): 2207 Square Feet
  • Irregular: Yes
  • Landscape Features:
  • Lot Size: 0.14 Acres
  • Sewer: Municipal sewage system
  • Parking Type: Other, RV
  • No. of Parking Spaces: 6

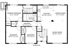
Rooms:

  • Bathroom Main Level 9'5'' x 5'3''
  • Bathroom Main Level 9'5'' x 5'3''
  • Foyer Main Level 17'0'' x 3'0''
  • Bedroom Main Level 7'9'' x 11'1''
  • Bedroom Main Level 10'2'' x 11'10''
  • Primary Bedroom Main Level 11'2'' x 10'8''
  • Foyer Main Level 6'0'' x 8'0''
  • Living Main Level 20'6'' x 14'6''
  • Dining Main Level 9'1'' x 10'8''
  • Kitchen Main Level 10'10'' x 10'8''
  • Bathroom 8'2'' x 5'0''
  • Kitchen 10'0'' x 10'0''
  • Bedroom 12'2'' x 9'11''
  • Kitchen 11'9'' x 20'11''
  • Kitchen 9'1'' x 12'11''
  • Bedroom 12'2'' x 10'0''
  • Bedroom 13'2'' x 11'9''
  • Bathroom 9'5'' x 5'2''

Courtesy of: Century 21 Assurance Realty Ltd, Judy Lindsay Okanagan

This listing content provided by REALTOR.ca has been licensed by REALTOR® members of The Canadian Real Estate Association.

This listing content provided by REALTOR.ca has been licensed by REALTOR® members of The Canadian Real Estate Association.