$479,000

House For Sale In Vernon, British Columbia

$479,000
  • 3

    Bedrooms

  • 3

    Baths

  • Yes

    Fireplace

Property Information:

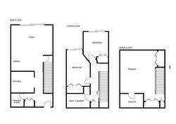
This sensational upgraded condo has a fantastic floor plan. 3 bedrooms,3 bathrooms. On the main level you will find an open layout, kitchen with a sit up breakfast bar, living room with a gas fireplace, a good size balcony overlooking green space and a 2 piece bathroom. On the upper level is a private very large dedicated Primary bedroom with full ensuite. The lower level has walk-out to patio from bedrooms, a full bathroom and stacking laundry. Lots of green space around the townhouse for the kids to play. Nice area of complex and a handy location on a bus route. Perfect share home as main living space between the primary up and 2 bedrooms down. 2 parking stalls.

Inclusions: fridge, stove, dishwasher, stacking washer & dryer

Exclusions : any items beloning to tenant

Property Features:

  • Bedrooms: 3
  • Bathrooms: 2+1
  • Annual Tax Amount: $2,284
  • Architectural Style: Two Story
  • Built in: 1997
  • Construction Materials: Vinyl Siding, Wood Frame
  • Cooling: Other
  • Exterior Features: Balcony
  • Floor Space (approx): 1284 Square Feet
  • Heating: Baseboard, Electric
  • Parking Features: On Site, Parking Space(s)
  • Roof: Asphalt, Shingle
  • Water Source: Public
  • Sewer: Public Sewer

Rooms:

  • Bedroom Basement Level 2.62 m x 3.91 m
  • Bathroom Basement Level .00 m x .00 m
  • Bedroom Basement Level 2.77 m x 2.84 m
  • Ensuite Bathroom 2nd Level .00 m x .00 m
  • Primary Bedroom 2nd Level 4.75 m x 3.91 m
  • Bathroom Main Level .00 m x .00 m
  • Kitchen Main Level 2.44 m x 2.62 m
  • Living Main Level 5.11 m x 4.65 m

Courtesy of: Royal LePage Downtown Realty

This listing content provided by Association of Interior REALTORS.