Property Information:
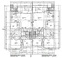
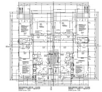
Build Without Delay - Development permit Approved and plans for a 4plex (Duplexes with suites) are awaiting your HPO number. This 8,625 sqft lot with 70 ft frontage is cleared and ready to build. Major site upgrades are already complete, including a new front curb, sidewalk, and fully paved rear lane. Located across from the park, steps to elementary and a few more steps to other levels of school, shopping, transit, parks, and the PoCo trail, this site is the perfect location for young families. A rare chance to step into a premium redevelopment project without delay.
Courtesy of: RE/MAX Sabre Realty Group
The data relating to real estate on this web site comes in part from the MLS® Reciprocity program of the Greater Vancouver REALTORS®, the Fraser Valley Real Estate Board or Chilliwack & District Real Estate Board. Real estate listings held by participating real estate firms are marked with the MLS® Reciprocity logo and detailed information about the listing includes the name of the listing agent. This representation is based in whole or part on data generated by the Greater Vancouver REALTORS®, the Fraser Valley Real Estate Board or Chilliwack & District Real Estate Board which assumes no responsibility for its accuracy. The materials contained on this page may not be reproduced without the express written consent of the Greater Vancouver REALTORS®, the Fraser Valley Real Estate Board or Chilliwack & District Real Estate Board.