$625,000

House For Sale In Creston, British Columbia

$625,000
  • 4

    Bedrooms

  • 3

    Baths

  • 0.45 Acres

    Lot Size

Property Information:

A home that offers the space, flow, and flexibility you’ve been waiting for. This 4 bedroom, 3 bathroom home features a self-contained in-law suite in a walk-out basement and sits on an expansive 19,600 sq ft (nearly half-acre) lot, offering rare space and privacy in an established neighbourhood. The main floor includes three full-size bedrooms, main-floor laundry, and a bright, open living space anchored by a newly updated, spacious kitchen. The kitchen flows seamlessly through the dining and living areas and out to a covered deck, creating an easy transition between indoor and outdoor living. Natural light fills the home throughout, and a large mudroom adds excellent everyday functionality. The walk-out basement is ideal for extended family, guests, or in-laws and includes a functional kitchen, a generous primary bedroom, a new bathroom, a den, and ample storage. Outside, enjoy irrigated garden beds, a greenhouse, workshop/tool shed, outdoor patio, carport, and multiple storage options. The oversized fenced yard backs onto a greenbelt park, offering a peaceful setting and added privacy. Ideally located within walking distance to downtown, shopping, schools, parks, the library, transit, and community amenities, this property delivers space, convenience, and versatility in a location designed for everyday living. (id:27)

Building Features:

  • Style: Detached
  • Building Type: House
  • Air Conditioning: Yes
  • Architectural Style: Bungalow, Rancher
  • Basement Type: Full
  • Construction Style - Attachment: Detached
  • Exterior Finish: Vinyl siding
  • Fireplace Fuel: Gas
  • Fireplace Type: Unknown
  • Floor Space: 2586 sqft
  • Flooring Type: Carpeted, Concrete, Laminate, Linoleum
  • Roof Material: Asphalt shingle
  • Roof Style: Unknown
  • Heating Type: Forced air, Heat Pump
  • Appliances: Refrigerator, Dishwasher, Dryer, Range - Electric, Microwave, Washer

Property Features:

  • OwnershipType: Freehold
  • Property Type: Single Family
  • Bedrooms: 4
  • Bathrooms: 3
  • Amenities Nearby: Park, Recreation, Schools, Shopping
  • Built in: 1958
  • Community Features: Family Oriented
  • Features: Level lot, Private setting, Treed, Jacuzzi bath-tub
  • Floor Space (approx): 2586 Square Feet
  • Irregular: Yes
  • Landscape Features: Landscaped, Underground sprinkler
  • Lot Size: 0.45 Acres
  • View Type: City view, Mountain view
  • Sewer: Municipal sewage system
  • Parking Type: Carport
  • No. of Parking Spaces: 12

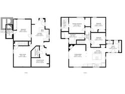
Rooms:

  • Bathroom Basement Level Measurements not available
  • Storage Basement Level 13'11'' x 15'11''
  • Kitchen Basement Level 20'9'' x 13'6''
  • Bedroom Basement Level 13'5'' x 16'7''
  • Utility Basement Level 6'6'' x 8'7''
  • Family Basement Level 16'0'' x 13'3''
  • Bathroom Main Level Measurements not available
  • Bathroom Main Level Measurements not available
  • Foyer Main Level 9'0'' x 9'8''
  • Bedroom Main Level 11'2'' x 8'11''
  • Bedroom Main Level 11'2'' x 11'3''
  • Primary Bedroom Main Level 12'1'' x 12'
  • Living Main Level 12'10'' x 17'2''
  • Kitchen Main Level 14'11'' x 14'10''

Courtesy of: Stonehaus Realty Corp.

This listing content provided by REALTOR.ca has been licensed by REALTOR® members of The Canadian Real Estate Association.

This listing content provided by REALTOR.ca has been licensed by REALTOR® members of The Canadian Real Estate Association.