13 120 HILLSHIRE Boulevard, Sherwood Park, AB, T8B 0C9
Courtesy of Don McKay of Royal LePage Prestige Realty
$825,542MLS® # E4471163
Duplex For Sale In Hillshire, Sherwood Park, Alberta
1
Bedroom
2
Baths
-
$310.51
Maintenance Fees
Property Information:
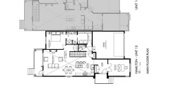
Welcome to Hillshire, where Salvi Homes delivers timeless quality in this stunning executive bungalow. With almost 1,400 sq. ft. of thoughtfully designed living space, this home offers an inviting open floor plan perfect for modern living. The island kitchen flows seamlessly into the great room, enhanced by vaulted ceilings that create a sense of space and light. A rear staircase adds architectural interest and functionality, while the flex room provides versatility for a home office, den, or guest space. The spacious master suite is a private retreat, featuring a large ensuite shower and elegant finishes. Crafted to Salvi’s renowned quality standards, every detail reflects superior workmanship and design. Located close to parks, scenic trails, and everyday amenities, this Hillshire bungalow combines luxury, comfort, and convenience—perfect for those who appreciate exceptional craftsmanship in a premier location.
Building Features:
- Floor Space: 129.88
Property Features:
- Bedrooms: 1
- Bathrooms: 1+1
- Amenities Features: Deck
- Appliances: None
- Architectural Style: Bungalow
- Basement: Full, Unfinished
- Basement Development: Unfinished
- Basement Type: Full
- Building Type: Half Duplex
- Built in: 2025
- Community Features: Deck
- Condo Fee Includes: Reserve Fund Contribution
- Condo Fees: $310 Monthly
- Exterior Features: Fenced, Playground Nearby, Private Setting, Shopping Nearby
- Floor Space (approx): 129.88 Square Metres
- Flooring: Carpet, Vinyl Plank
- Foundation Details: Concrete Perimeter
- Heating: Forced Air-1, Natural Gas
- Parking Features: Double Garage Attached
- Road Access: Paved
- Roof: Asphalt Shingles
- Site Influences: Fenced, Playground Nearby, Private Setting, Shopping Nearby
- Zoning: Zone 25
Courtesy of: Royal LePage Prestige Realty
Data was last updated 2026-01-27 at 15:06
The data relating to real estate for sale on this web site comes in part from the Internet Data exchange (“IDX”) program of the REALTORS® Association of Edmonton. IDX information is provided exclusively for consumers' personal, non-commercial use and may not be used for any purpose other than to identify prospective properties consumers may be interested in purchasing. The data on this website is deemed reliable but is not guaranteed accurate by the REALTORS® Association of Edmonton. Information deemed reliable but not guaranteed.
Copyright 2026 by the REALTORS® Association of Edmonton. All Rights Reserved. Data is deemed reliable but is not guaranteed accurate by the REALTORS® Association of Edmonton.
Additional Photos
