$400,000

House For Sale In Canora, Edmonton, Alberta

$400,000
  • 3

    Bedrooms

  • 2

    Baths

  • 343.21 Square Metres

    Lot Size

Property Information:

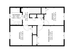
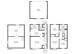
Charming 2-storey half duplex with detached double garage (20x20) in Canora. This 1,140 sqft (plus full basement) home features upgrades throughout including new appliances, phantom screen door, freshly painted walls, newer above grade triple panel windows (2022) and new shingles. On the main level: spacious living room with large east-facing windows, kitchen and dining area with tile flooring & modern lighting and a 2-piece powder room. Upstairs: 3 generous-sized bedrooms and a 4-piece bathroom. The partially finished basement boasts plenty of space for a family room, storage or hobby room as well as laundry room. Outside: a large, partially fenced yard with patio, storage shed and pathway to the garage with back alley access. Located on a quiet treed street near all amenities as well as walking trails and MacKinnon Ravine. Easy access to Stony Plain Road for commuting. No condo fees! Other half of duplex is also for sale through different agent MLS E4456467

Building Features:

  • Floor Space: 106 Metre

Property Features:

  • Bedrooms: 3
  • Bathrooms: 1+1
  • Amenities Features: Detectors Smoke, Fire Pit, No Animal Home, No Smoking Home, Patio
  • Appliances: Dryer, Freezer, Garage Opener, Microwave Hood Fan, Refrigerator, Storage Shed, Stove-Electric, Washer, Window Coverings
  • Architectural Style: 2 Storey
  • Basement: Full, Finished
  • Basement Development: Fully Finished
  • Basement Type: Full
  • Building Type: Half Duplex
  • Built in: 1990
  • Community Features: Detectors Smoke, Fire Pit, No Animal Home, No Smoking Home, Patio
  • Exterior Features: Back Lane, Playground Nearby, Public Swimming Pool, Public Transportation, Schools, Shopping Nearby, Partially Fenced
  • Floor Space (approx): 106 Square Metres
  • Flooring: Carpet, Ceramic Tile, Laminate Flooring
  • Foundation Details: Concrete Perimeter
  • Heating: Forced Air-1, Natural Gas
  • Lot Shape: Rectangular
  • Lot Size: 343.21 Square Metres
  • Parking Features: Double Garage Detached
  • Road Access: Paved
  • Roof: Asphalt Shingles
  • Site Influences: Back Lane, Playground Nearby, Public Swimming Pool, Public Transportation, Schools, Shopping Nearby, Partially Fenced
  • Zoning: Zone 21
  • No. of Parking Spaces: 4

Courtesy of: Royal LePage Noralta Real Estate

Data was last updated 2025-12-03 at 15:06

The data relating to real estate for sale on this web site comes in part from the Internet Data exchange (“IDX”) program of the REALTORS® Association of Edmonton. IDX information is provided exclusively for consumers' personal, non-commercial use and may not be used for any purpose other than to identify prospective properties consumers may be interested in purchasing. The data on this website is deemed reliable but is not guaranteed accurate by the REALTORS® Association of Edmonton. Information deemed reliable but not guaranteed.

Copyright 2026 by the REALTORS® Association of Edmonton. All Rights Reserved. Data is deemed reliable but is not guaranteed accurate by the REALTORS® Association of Edmonton.