Saint-Eustache QC, J7R 2S7
Remarks:
Grand plain-pied situé dans un quartier de choix à St-Eustache! Cette jolie demeure entretenue avec soin par ses propriétaires depuis 1998 est à proximité de tous les services & du REM de Deux-Montagnes! Cette charmante propriété se distingue par sa qualité & sa fonctionnalité! Le RDC offre trois chambres à coucher sur le même palier, idéal pour la vie familiale! Le sous-sol propose une vaste salle familiale, offrant beaucoup de rangement et la possibilité d'aménager une chambre supplémentaire! De plus, profitez d'une pièce insonorisée, parfaite pour les soirées cinéma maison! À l'extérieur, vous serez charmés par la cour paysagée & clôturée!
Bienvenue dans ce grand plain-pied minutieusement entretenu par ses propriétaires qui y résident depuis 1998! Cette charmante demeure est situé dans un magnifique secteur familial recherché de Saint-Eustache, à proximité de tous les services et du REM de Deux-Montagnes! Une propriété qui combine parfaitement emplacement, fonctionnalité et qualité de vie!
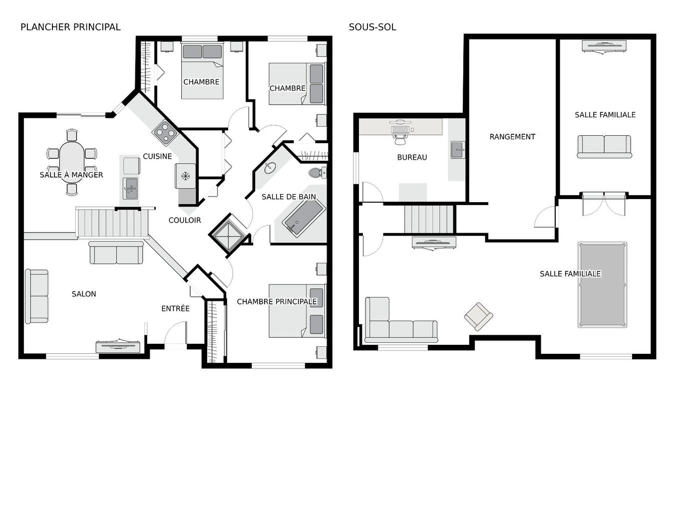
Dès l'entrée, vous serez séduits par le rez-de-chaussée à aire ouverte, baigné de lumière naturelle grâce à une belle fenêtre de salon. La cuisine fonctionnelle, pensée pour la vie familiale, s'intègre harmonieusement aux espaces de vie. Le RDC offre trois chambres à coucher sur le même palier, un atout rare et recherché pour les familles!
Le sous-sol propose une vaste salle familiale, beaucoup de rangement additionnel et la possibilité d'aménager une chambre supplémentaire! Coup de coeur assuré pour la pièce insonorisée, idéale pour les soirées popcorn cinéma maison ou un espace détente.
À l'extérieur, profitez d'une cour paysagée et clôturée, parfaite pour les enfants et les moments en famille! Le spa, inclus dans la vente, peut être savouré en toute saison grâce au solarium de Paris, un vrai plus pour le confort et la détente.
Une propriété charmante, clé en main, idéale pour la vie familiale, dans un quartier de choix où il fait bon vivre!
Inclusions: Luminaires, ventilateurs, rideaux, pôles, hotte micro-ondes, lave-vaisselle, frigo, cuisinière, échangeur d'air, aspirateur central et accessoires, thermopompe centrale, système d'alarme, spa, balançoire, remise, solarium de Paris, cinéma maison (tout le système télé 80 pouces et 3D). *Possibilité de vendre meublé et accessoires pour la cour tel que: tondeuse, souffleuse, balançoire, articles de jardin et 2 échelles!
Building Features:
- Style: Detached
- Basement: 6 feet and more, Finished basement
- Driveway: Asphalt, Double width or more
- Foundation: Poured concrete
- Lot: Fenced, Landscaped
- Parking: Driveway
- Property or unit amenity: Central vacuum cleaner system installation, Air exchange system, Electric garage door opener, Central heat pump
- Proximity: Highway, Daycare centre, Hospital, Park, Bicycle path, Elementary school, Réseau Express Métropolitain (REM), High school, Cross-country skiing, Commuter train, Public transportation
- Roofing: Asphalt shingles
- Siding: Aggregate, Aluminum
- Topography: Flat
- Window Type: Sliding, Casement
- Windows: PVC
- Heating System: Forced air, Electric baseboard units
- Heating Energy: Electricity
- Water Supply: Municipality
- Sewage System: Municipality
Taxes:
- Municipal Tax: $3,065
- School Tax: $310
- Annual Tax Amount: $3,375
Property Assessemnt:
- Lot Assessment: $180,200
- Building Assessment: $318,100
- Total Assessment: $498,300
Property Features:
- Bedrooms: 3+1
- Bathrooms: 1
- Built in: 1998
- Lot Depth: 100.0 Feet
- Lot Frontage: 50.0 Feet
- Lot Size: 4998.00 Square Feet
- Zoning: RESI
- No. of Parking Spaces: 4
Rooms:
- Foyer Ground Level 2.18 m x 2.06 m 7.2 ft x 6.9 ft Flooring: Ceramic
- Living Ground Level 3.99 m x 5.59 m 13.1 ft x 18.4 ft Flooring: Parquetry
- Dining Ground Level 4.11 m x 3.38 m 13.6 ft x 11.1 ft Flooring: Parquetry
- Kitchen Ground Level 3.89 m x 2.62 m 12.9 ft x 8.7 ft Flooring: Linoleum
- Primary Bedroom - Irregular Ground Level 4.11 m x 3.45 m 13.6 ft x 11.4 ft Flooring: Parquetry
- Bedroom - Irregular Ground Level 3.30 m x 3.00 m 10.10 ft x 9.10 ft Flooring: Parquetry
- Bedroom Ground Level 2.51 m x 3.51 m 8.3 ft x 11.6 ft Flooring: Parquetry
- Bathroom Ground Level 3.30 m x 2.77 m 10.10 ft x 9.1 ft Flooring: Ceramic
- Family Basement Level 10.31 m x 3.81 m 33.10 ft x 12.6 ft Flooring: Laminate floor
- Other Basement Level 3.28 m x 5.21 m 10.9 ft x 17.1 ft Flooring: Laminate floor
- Storage Basement Level 3.86 m x 2.87 m 12.8 ft x 9.5 ft Flooring: Concrete
- Workshop Basement Level 5.49 m x 2.95 m 18 ft x 9.8 ft Flooring: Concrete
Convert Measurement to:
Data provided by: Centris - 600 Ch Du Golf, Ile -Des -Soeurs, Quebec H3E 1A8
All information displayed is believed to be accurate but is not guaranteed and should be independently verified. No warranties or representations are made of any kind. Copyright© 2021 All Rights Reserved.
Market Price Trends
Location of 121 Rue Bellerive, Saint-Eustache, QC, J7R 2S7
Demographic Information of 121 Rue Bellerive, Saint-Eustache, QC, J7R 2S7
Life Stage
Later YearsEmployment Type
Service Sector/White CollarAverage Household Income
$105,229.23Average Number of Children
1.70Household Population
Household Structure
Age of Population
Education
Education Level
No certificate/diploma/degree
16.33 %High school certificate or equivalent
26.08 %Apprenticeship trade certificate/diploma
21.78 %College/non-university certificate
20.12 %University certificate (below bachelor)
1.32 %University Degree
14.38 %Commuter
Travel To Work
By Car
90.57 %By Public Transit
2.1 %By Walking
2.26 %By Bicycle
0.22 %By Other Methods
4.85 %Cultural Diversity
Knowledge of Official Language
Mother Tongue
Building Information
Building Type
Apartments (Low and High Rise)
28.34 %Houses
71.66 %










































































